highlight_off
Riferimento annuncio 129908 info

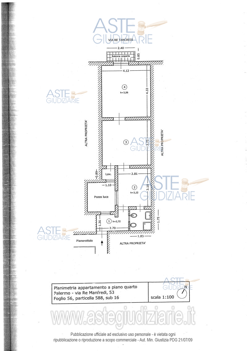
Appartamento Via Re Manfredi, 53, 90100 Palermo (PA)

4,50
61,00
0
€ 15.458
Vendita all'asta Senza incanto - LOTTO UNICO: appartamento per civile abitazione, ubicato al piano 4° a destra salendo le scale, composto da vano d’ingresso, camera con balcone, soggiorno, cucina, lavanderia ed un servizio igienico, per una superficie commerciale di 61,00 mq. circa. Prezzo base € 15.457,60 (offerta minima € 11.593,20). Data vendita 16/12/2025 ore 11:00. Professionista delegato alla vendita Not. Fabio Gattuso - Email "fgattuso@notariato.it"; Tel. 091584007. Custode Giudiziario Not. Fabio Gattuso - Email "fgattuso@notariato.it"; Tel. 091584007. Rif. Tribunale di Palermo - Esecuzione immobiliare post legge 80 n. 394/2015

Superficie 61,00 mq
Vani 4,50
Bagni
Piano 0

Tipologia di vendita Giudiziaria
Modalità di vendita Presso il venditore
Termine presentazione offerte 01/01/1900 ore 00:00
Data e ora inizio gara 16/12/2025 ore 11:00
Codice ID astegiudiziarie.it 397007
4,50
61,00
0
€ 15.458

Ti interessa questa vendita?

north_east

Clicca qui per essere indirizzato alla scheda sul sito di provenienza

Bene di astegiudiziarie.it