highlight_off
Riferimento annuncio 272431 info

Appartamento Via Galileo Galilei, 36, 95046 Palagonia CT, Italia, 95046 Palagonia (CT)

6,50
101,00
0
€ 13.212
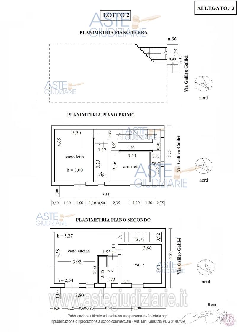
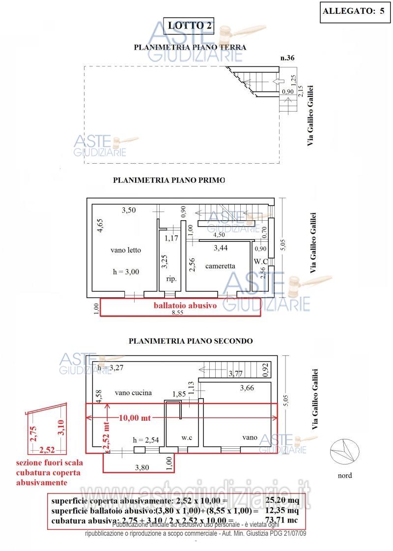
Vendita all'asta Senza incanto, con gara telematica sincrona mista - LOTTO 2: Piena proprietà di un immobile sito in Palagonia adibito ad abitazione al pianoprimo e secondo con ingresso autonomo dal civico n. 36 di via Galileo Galilei,costituito da quattro vani con accessori. Prezzo base € 13.211,64 (offerta minima € 9.908,73). Data vendita 20/11/2025 ore 18:00. Professionista delegato alla vendita Avv. Valentina Fraggetta - Email "vfraggetta@gmail.com"; Cell. 3332014672. Custode Giudiziario Avv. Valentina Fraggetta - Email "vfraggetta@gmail.com"; Cell. 3332014672. Rif. Tribunale di Caltagirone - Esecuzione immobiliare post legge 80 n. 51/2020

Superficie 101,00 mq
Vani 6,50
Bagni
Piano 0

Tipologia di vendita Giudiziaria
Modalità di vendita Sincrona mista
Termine presentazione offerte 19/11/2025 ore 12:00
Data e ora inizio gara 20/11/2025 ore 18:00
Codice ID astegiudiziarie.it 4302404
6,50
101,00
0
€ 13.212

Ti interessa questa vendita?

north_east

Clicca qui per essere indirizzato alla scheda sul sito di provenienza

Bene di astegiudiziarie.it