highlight_off
Riferimento annuncio 322097 info

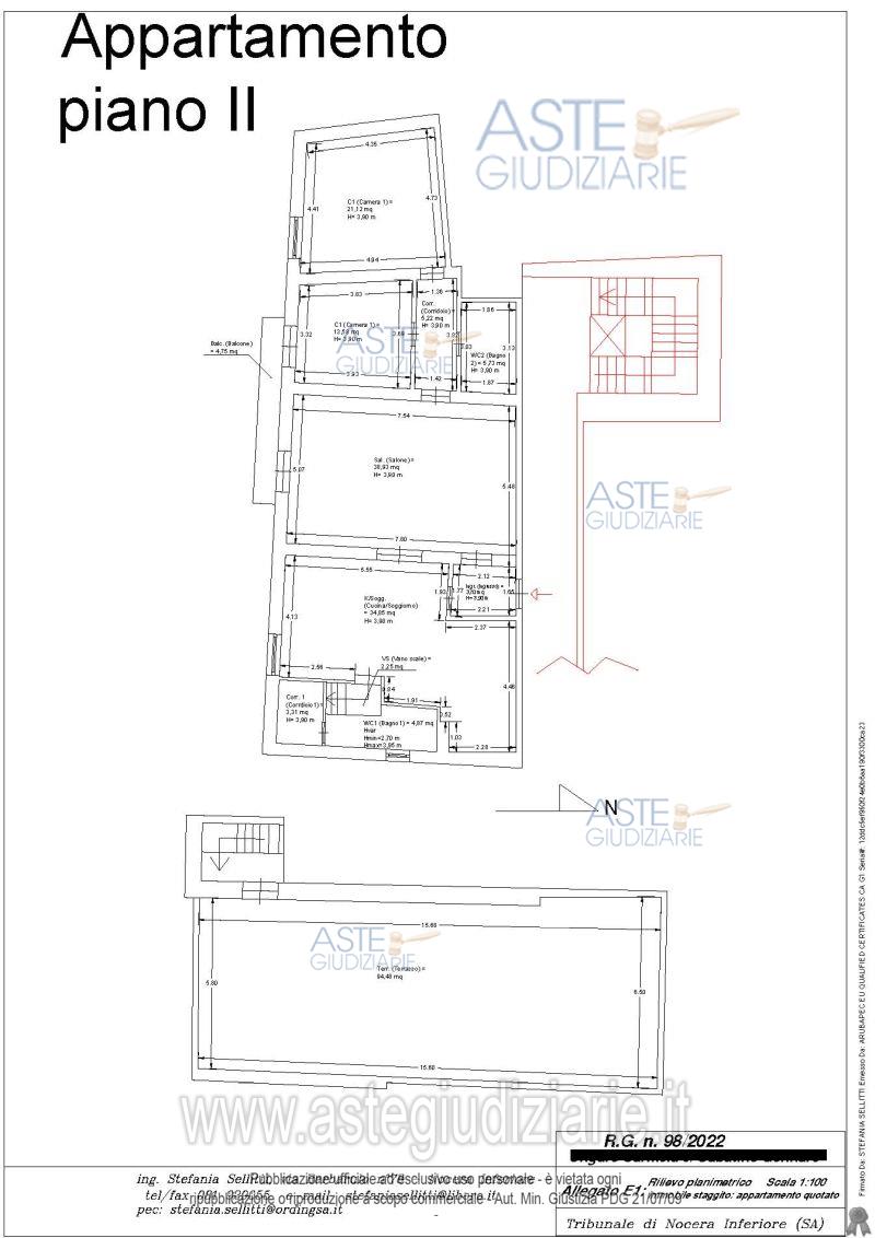
Appartamento Via Nicola Pagano, 13, 84016 Pagani SA, Italia, 84016 Pagani (SA)

5,00
198,00
0
€ 200.000
Vendita all'asta Senza incanto, con gara telematica asincrona - LOTTO 1: Piena ed intera proprietà di un appartamento per civile abitazione posto al secondo piano. Prezzo base € 200.000,00 (offerta minima € 150.000,00). Data inizio operazioni di vendita: 26/02/2026 ore 16:00. Giudice Dott. Maria Troisi. Professionista delegato alla vendita Avv. Alessandro Marino. Custode Giudiziario Avv. Alessandro Marino - Email "avv.alessandromarino@virgilio.it". Rif. Tribunale di Nocera Inferiore - Esecuzione immobiliare post legge 80 n. 98/2022

Superficie 198,00 mq
Vani 5,00
Bagni
Piano 0

Tipologia di vendita Giudiziaria
Modalità di vendita Asincrona telematica
Termine presentazione offerte 25/02/2026 ore 12:30
Data e ora inizio gara 26/02/2026 ore 16:00
Codice ID astegiudiziarie.it 4341960
5,00
198,00
0
€ 200.000

Ti interessa questa vendita?

north_east

Clicca qui per essere indirizzato alla scheda sul sito di provenienza

Bene di astegiudiziarie.it