highlight_off
Riferimento annuncio 316133 info

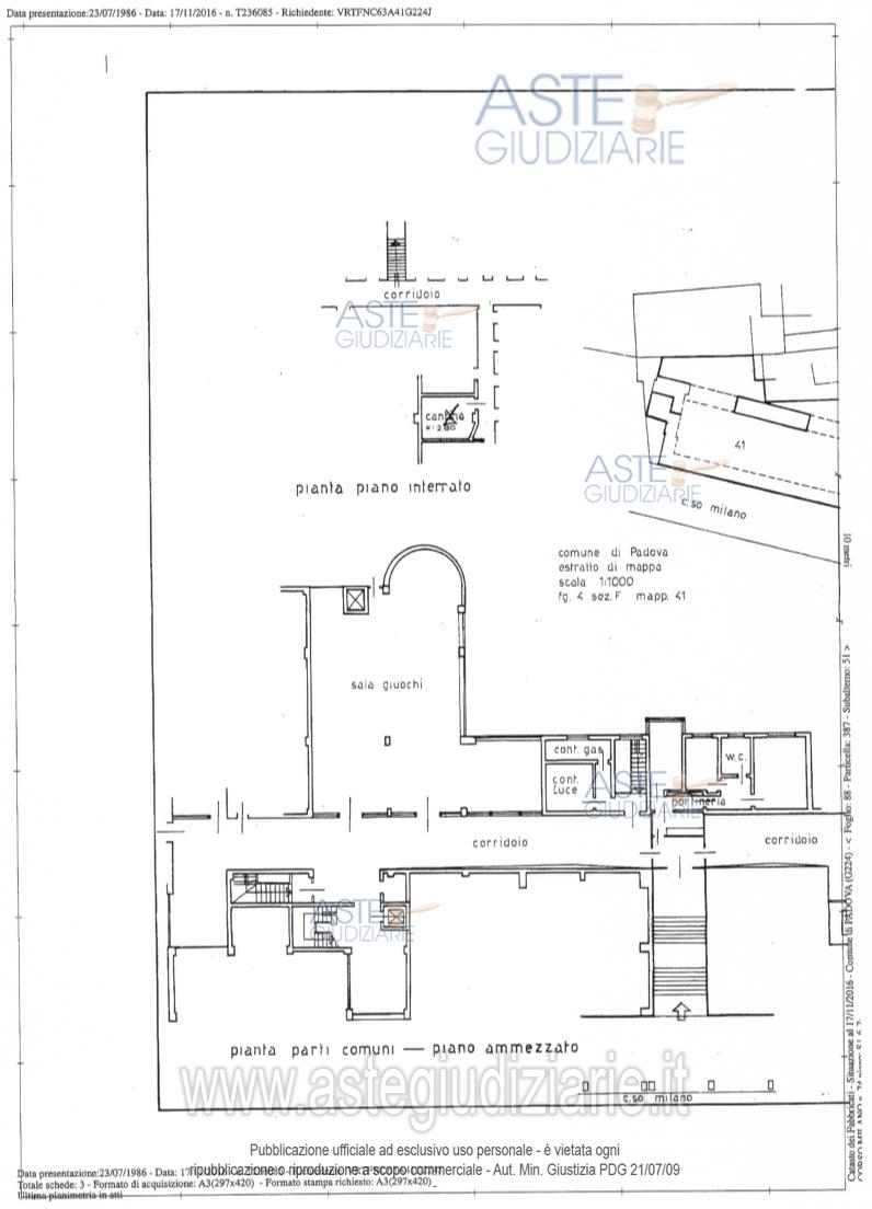
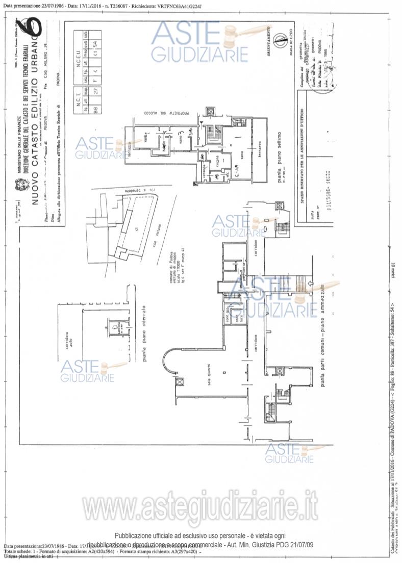
Appartamento Corso MILANO 74, 35100 Padova (PD)

0
€ 385.000
Vendita all'asta Senza incanto, con gara telematica sincrona - LOTTO UNICO: Appartamento su due livelli (divisibile in due unità) ai piani sesto e settimo, con terrazza e ripostiglio al piano ottavo, nonché cantine e garage al piano interrato. Occupato da debitore. Prezzo base € 385.000,00 (offerta minima € 288.750,00). Data vendita 03/12/2025 ore 16:00. Giudice Paola Rossi. Professionista delegato alla vendita Avv. Stefania Faggian - Email "s.faggian@pvg.network". Custode Giudiziario Avv. Stefania Faggian - Email "s.faggian@pvg.network"; Tel. 0498774383. Rif. Tribunale di Padova - Esecuzione immobiliare post legge 80 n. 1223/2011

Superficie mq
Vani
Bagni
Piano 0

Tipologia di vendita Giudiziaria
Modalità di vendita Sincrona telematica
Termine presentazione offerte 01/01/1900 ore 00:00
Data e ora inizio gara 03/12/2025 ore 16:00
Codice ID astegiudiziarie.it 4336689
0
€ 385.000

Ti interessa questa vendita?

north_east

Clicca qui per essere indirizzato alla scheda sul sito di provenienza

Bene di astegiudiziarie.it