highlight_off
Riferimento annuncio 97835 info

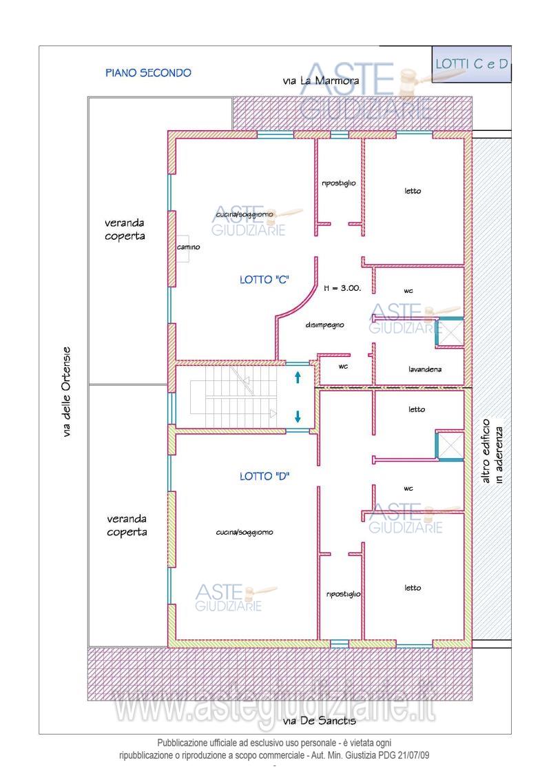
Appartamento via delle Ortensie n. 2, 96018 Pachino (SR)

5,00
115,00
2
€ 13.549
Vendita all'asta Senza incanto, con gara telematica sincrona mista - LOTTO 4: Piena proprietà dell’appartamento sito in Pachino, via delle Ortensie n. 2, ubicato al secondo piano, con veranda coperta e soprastante terrazza calpestabile, avente superficiecommerciale di circa mq. 115. Riportato nel Catasto dei Fabbricati di Pachino al f. 14, p.lla 26 sub. 20, Z.C. 1, cat. A/3, cl. 3, vani 5, R.C. € 309,87. Prezzo base € 13.548,62 (offerta minima € 10.161,47). Data vendita 15/05/2026 ore 12:00. Giudice Concita Cultrera. Professionista delegato alla vendita Avv. Carlo Carpinteri - Email "avvocato.carpinteri@gmail.com"; Tel. 093139555. Custode Giudiziario Avv. Carlo Carpinteri - Email "avvocato.carpinteri@gmail.com"; Tel. 093139555. Rif. Tribunale di Siracusa - Esecuzione immobiliare post legge 80 n. 20/2015

Superficie 115,00 mq
Vani 5,00
Bagni
Piano 2

Tipologia di vendita Giudiziaria
Modalità di vendita Sincrona mista
Termine presentazione offerte 01/01/1900 ore 00:00
Data e ora inizio gara 15/05/2026 ore 12:00
Codice ID astegiudiziarie.it 4216831
5,00
115,00
2
€ 13.549

Ti interessa questa vendita?

north_east

Clicca qui per essere indirizzato alla scheda sul sito di provenienza

Bene di astegiudiziarie.it