highlight_off
Riferimento annuncio 97834 info

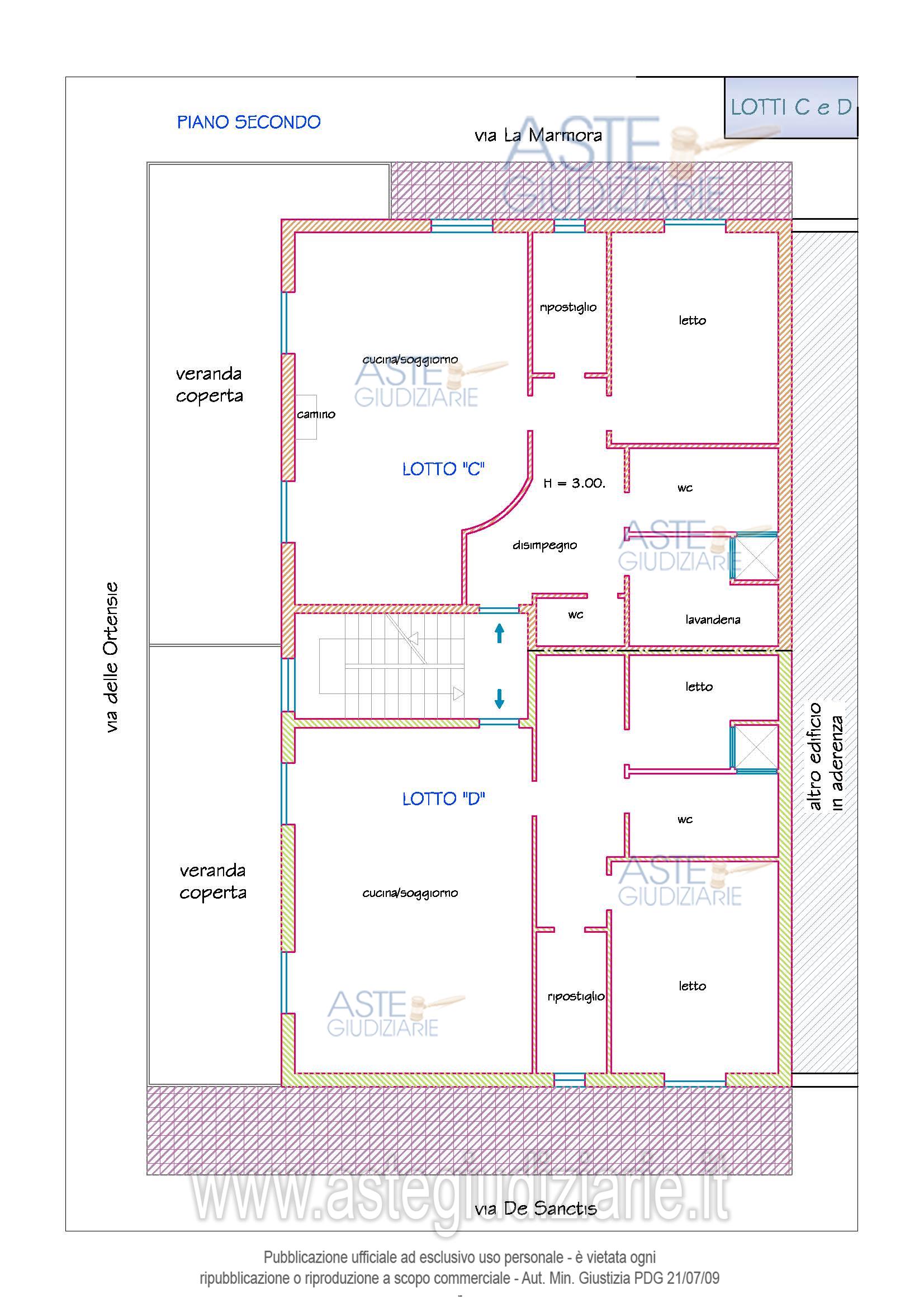
Appartamento via delle Ortensie n. 2, 96018 Pachino (SR)

3,00
137,00
2
€ 15.084
Vendita all'asta Senza incanto, con gara telematica sincrona mista - LOTTO 3: Piena proprietà dell’appartamento sito in Pachino, via delle Ortensie n. 2, ubicato a secondo piano, con ampia veranda in parte coperta e soprastante terrazza calpestabile(alla quale si accede internamente dal vano scala condominiale), avente superficie commerciale complessiva di circa mq. 137. Riportato nel Catasto dei Fabbricati di Pachino al f. 14, p.lla 26 sub. 19 (già sub. 6), Z.C. 1, cat. A/3, cl. 3, vani 5, R.C. € 309,87 (appartamento) e sub. 16, mq. 101 (lastrico solare). Prezzo base € 15.083,68 (offerta minima € 11.312,76). Data vendita 15/05/2026 ore 12:00. Giudice Concita Cultrera. Professionista delegato alla vendita Avv. Carlo Carpinteri - Email "avvocato.carpinteri@gmail.com"; Tel. 093139555. Custode Giudiziario Avv. Carlo Carpinteri - Email "avvocato.carpinteri@gmail.com"; Tel. 093139555. Rif. Tribunale di Siracusa - Esecuzione immobiliare post legge 80 n. 20/2015

Superficie 137,00 mq
Vani 3,00
Bagni
Piano 2

Tipologia di vendita Giudiziaria
Modalità di vendita Sincrona mista
Termine presentazione offerte 01/01/1900 ore 00:00
Data e ora inizio gara 15/05/2026 ore 12:00
Codice ID astegiudiziarie.it 4216830
3,00
137,00
2
€ 15.084

Ti interessa questa vendita?

north_east

Clicca qui per essere indirizzato alla scheda sul sito di provenienza

Bene di astegiudiziarie.it