highlight_off
Riferimento annuncio 262209 info

Appartamento Via Francesco de Sanctis, 1, 96018 Pachino SR, Italia, 96018 Pachino (SR)

0
€ 46.969
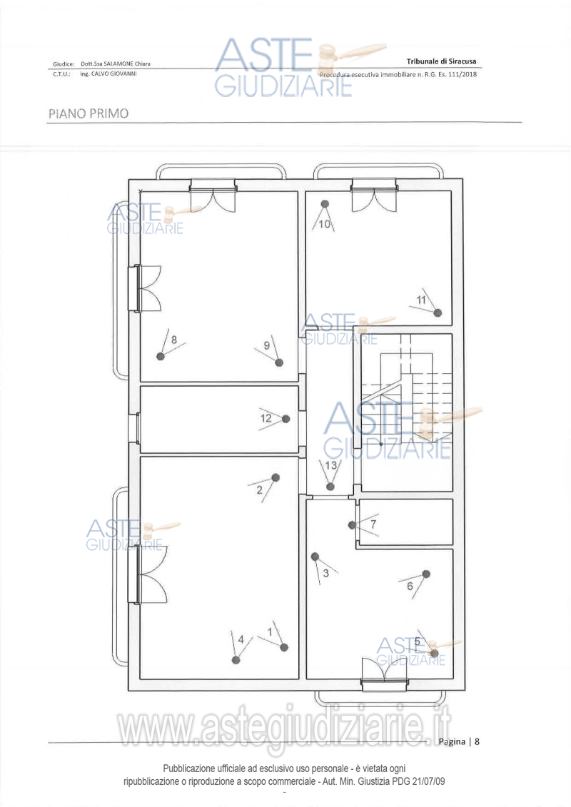
Vendita all'asta Senza incanto - LOTTO 3: piena proprietà dell’appartamento sito in Pachino (SR), Via Francesco De Sanctis n.1, piano secondo, censito al NCEU al fg. 15, p.lla 7491, sub 4, cat. A3, vani 5, con annesso lastricosolare distinto al fg. 15, p.lla 7491, sub 5 in quota pari a 1/3 indivisa. Il CTU ha provveduto aredigere l’APE”, assegnando la classe energetica “G”. Prezzo base € 46.968,75 (offerta minima € 35.226,56). Data vendita 04/02/2026 ore 12:00. Professionista delegato alla vendita Avv. Stefania Papa - Email "stefaniapapa69@gmail.com"; Tel. 3289139858. Custode Giudiziario Avv. Stefania Papa - Email "stefaniapapa69@gmail.com"; Tel. 3289139858. Rif. Tribunale di Siracusa - Esecuzione immobiliare post legge 80 n. 111/2018

Superficie mq
Vani
Bagni
Piano 0

Tipologia di vendita Giudiziaria
Modalità di vendita Presso il venditore
Termine presentazione offerte 01/01/1900 ore 00:00
Data e ora inizio gara 04/02/2026 ore 12:00
Codice ID astegiudiziarie.it 4296050
0
€ 46.969

Ti interessa questa vendita?

north_east

Clicca qui per essere indirizzato alla scheda sul sito di provenienza

Bene di astegiudiziarie.it