highlight_off
Riferimento annuncio 262208 info

Appartamento Via Francesco de Sanctis, 1, 96018 Pachino SR, Italia, 96018 Pachino (SR)

0
€ 45.844
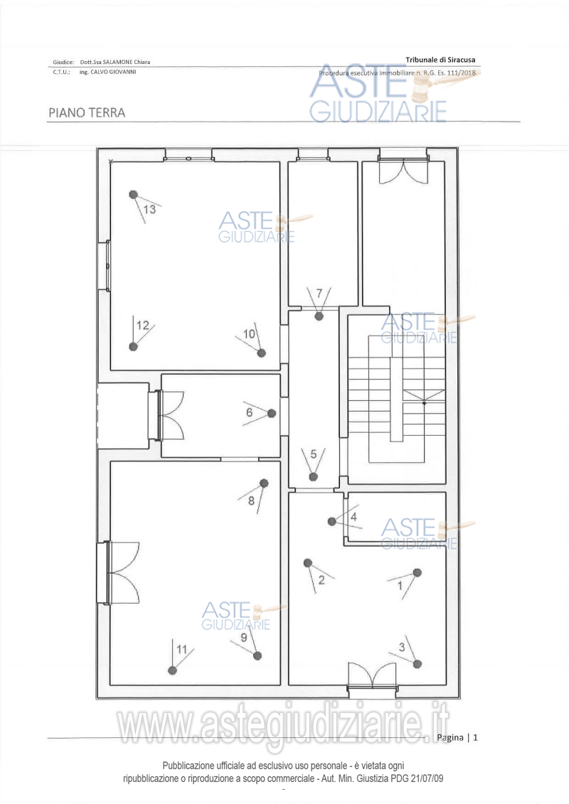
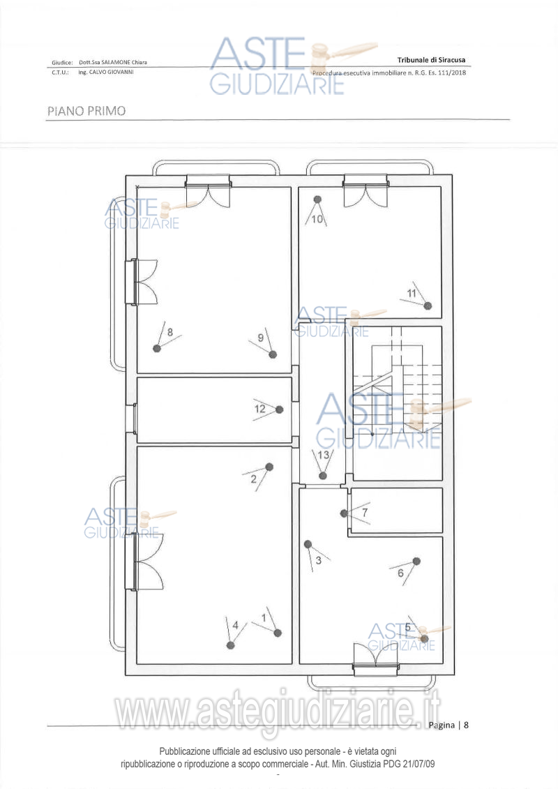
Vendita all'asta Senza incanto - LOTTO 2: piena proprietà dell’appartamento sito in Pachino (SR), Via Francesco De Sanctis n.1, posto al 1° piano, censito al NCEU al fg. 15, p.lla 7491, sub 3, cat. A3, vani 5, con annessolastrico solare distinto con fg. 15, p.lla 7491, sub 5 in quota pari a 1/3 indivisa. Il CTU haprovveduto a redigere l’APE, assegnando la classe energetica “F”.L’immobile risulta occupato dal debitore, che lo abita in virtù di provvedimento autorizzativo delGiudice dell’Esecuzione. Prezzo base € 45.843,75 (offerta minima € 34.382,81). Data vendita 04/02/2026 ore 12:00. Professionista delegato alla vendita Avv. Stefania Papa - Email "stefaniapapa69@gmail.com"; Tel. 3289139858. Custode Giudiziario Avv. Stefania Papa - Email "stefaniapapa69@gmail.com"; Tel. 3289139858. Rif. Tribunale di Siracusa - Esecuzione immobiliare post legge 80 n. 111/2018

Superficie mq
Vani
Bagni
Piano 0

Tipologia di vendita Giudiziaria
Modalità di vendita Presso il venditore
Termine presentazione offerte 01/01/1900 ore 00:00
Data e ora inizio gara 04/02/2026 ore 12:00
Codice ID astegiudiziarie.it 4296049
0
€ 45.844

Ti interessa questa vendita?

north_east

Clicca qui per essere indirizzato alla scheda sul sito di provenienza

Bene di astegiudiziarie.it