highlight_off
Riferimento annuncio 262207 info

Appartamento Via Giuseppe Garibaldi, 112, 96018 Pachino SR, Italia, 96018 Pachino (SR)

0
€ 38.250
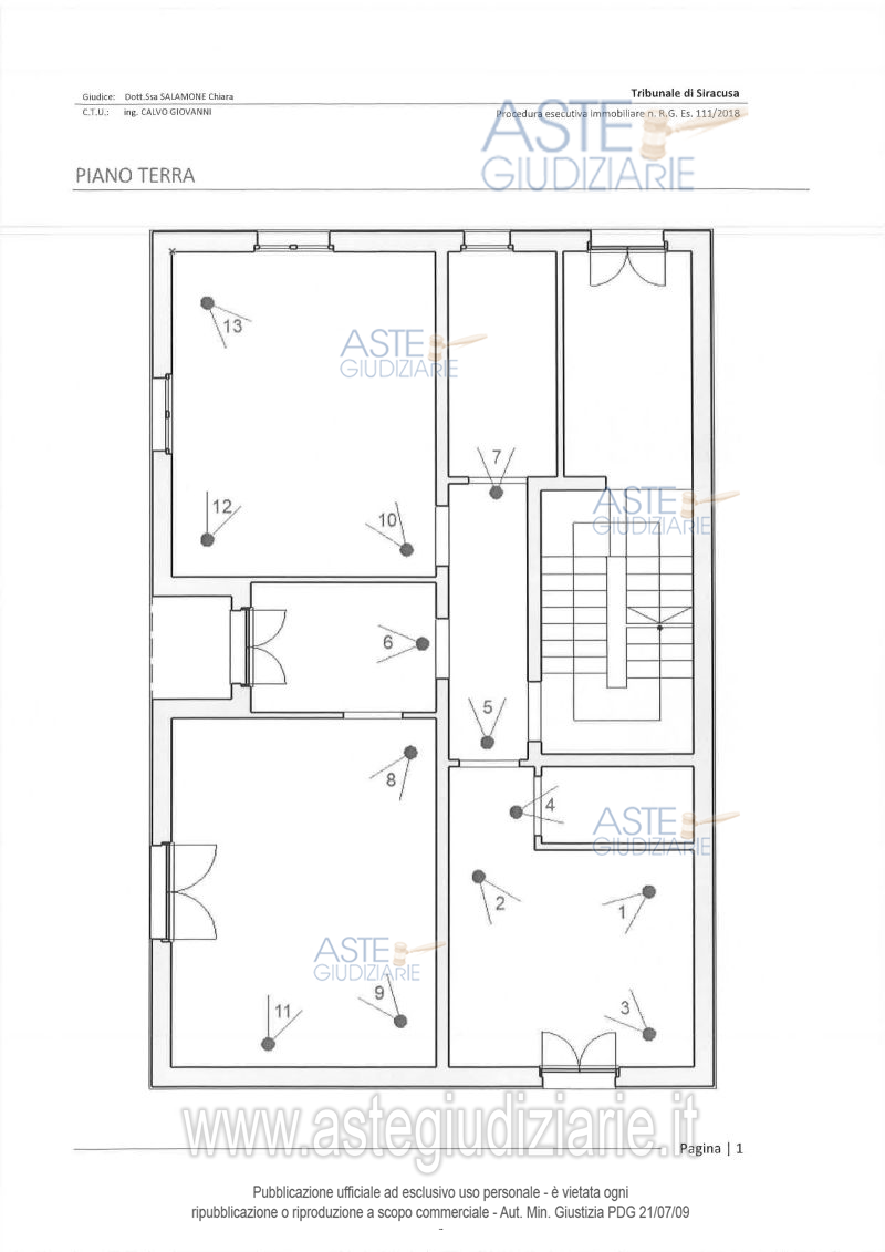
Vendita all'asta Senza incanto - LOTTO 1: piena proprietà dell’appartamento sito in Pachino (SR), Via Garibaldi n. 112, posto al piano terra, censito al NCEU al fg. 15, p.lla 7491, sub. 2, cat. A/3, vani 4, con annesso lastrico solare distinto con fg. 15, p.lla 7491, sub 5 in quota pari a 1/3 indivisa. . Prezzo base € 38.250,00 (offerta minima € 28.687,50). Data vendita 04/02/2026 ore 12:00. Professionista delegato alla vendita Avv. Stefania Papa - Email "stefaniapapa69@gmail.com"; Tel. 3289139858. Custode Giudiziario Avv. Stefania Papa - Email "stefaniapapa69@gmail.com"; Tel. 3289139858. Rif. Tribunale di Siracusa - Esecuzione immobiliare post legge 80 n. 111/2018

Superficie mq
Vani
Bagni
Piano 0

Tipologia di vendita Giudiziaria
Modalità di vendita Presso il venditore
Termine presentazione offerte 01/01/1900 ore 00:00
Data e ora inizio gara 04/02/2026 ore 12:00
Codice ID astegiudiziarie.it 4296048
0
€ 38.250

Ti interessa questa vendita?

north_east

Clicca qui per essere indirizzato alla scheda sul sito di provenienza

Bene di astegiudiziarie.it