highlight_off
Riferimento annuncio 305932 info

Appartamento Via Firenze, 47, 08020 Orotelli NU, Italia, 08020 Orotelli (NU)

7,50
146,13
1
0
€ 72.882
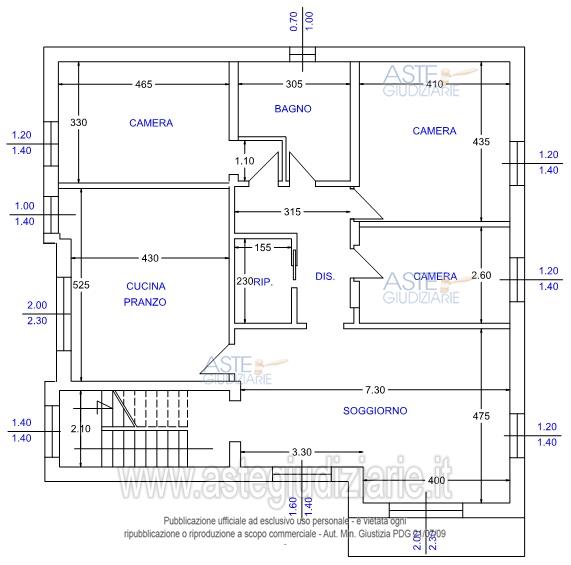
Vendita all'asta Senza incanto, con gara telematica asincrona - LOTTO UNICO: LOTTO UNICO: Appartamento ubicato a Orotelli (NU) - Via Firenze 47, piano 1 - Appartamento di civile abitazione ubicato al piano primo di un edificio articolato su quattro livelli, composto da vano scala comune d'ingresso, soggiorno, cucina, ripostiglio, disimpegno, tre camere, bagno e due verande, identificato al catasto Fabbricati - Fg. 13, Part. 1424, Sub. 3, Categoria A2. Prezzo base € 72.882,33 (offerta minima € 54.661,75). Data inizio operazioni di vendita: 17/10/2025 ore 17:00. Professionista delegato alla vendita Not. Marco Puggioni - Email "notaio.puggioni@gmail.com"; Tel. 0784231193. Custode Giudiziario Ivg Tempio Pausania - Email "visite.ivgnuoro@gmail.com"; Tel. 079630505. Rif. Tribunale di Nuoro - Espropriazione immobiliare (cartabia) n. 5/2024

Superficie 146,13 mq
Vani 7,50
Bagni 1
Piano 0

Tipologia di vendita Giudiziaria
Modalità di vendita Asincrona telematica
Termine presentazione offerte 16/10/2025 ore 12:00
Data e ora inizio gara 17/10/2025 ore 17:00
Codice ID astegiudiziarie.it 4328501
7,50
146,13
1
0
€ 72.882

Ti interessa questa vendita?

north_east

Clicca qui per essere indirizzato alla scheda sul sito di provenienza

Bene di astegiudiziarie.it