highlight_off
Riferimento annuncio 220390 info

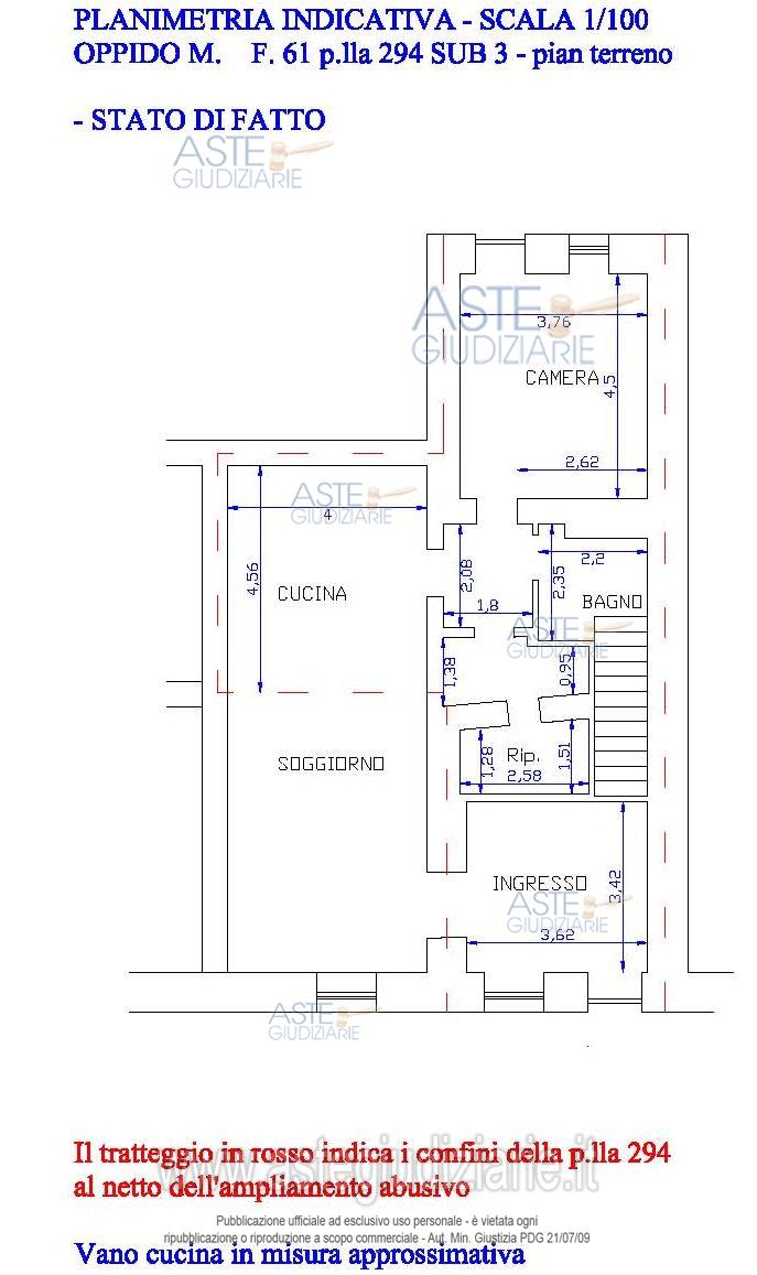
Appartamento Via Rocco de Zerbi n. 81, 89014 Oppido Mamertina (RC)

6,00
167,00
0
€ 13.592
Vendita all'asta Senza incanto, con gara telematica asincrona - LOTTO 1: Piena proprietà di un fabbricato a 3 elevazioni fuori terra consistenza vani 6, superficie catastale mq 167 escluse aree scoperte. Prezzo base € 13.592,00 (offerta minima € 10.194,00). Data inizio operazioni di vendita: 24/04/2026 ore 09:30. Giudice Dott. Marta Caineri. Professionista delegato alla vendita Avv. Giuseppe Conti - Email "delegato.conti@gmail.com"; Tel. 3714514206. Custode Giudiziario Avv. Giuseppe Conti - Email "delegato.conti@gmail.com"; Tel. 3714514206. Rif. Tribunale di Palmi - Esecuzione immobiliare post legge 80 n. 61/2015

Superficie 167,00 mq
Vani 6,00
Bagni
Piano 0

Tipologia di vendita Giudiziaria
Modalità di vendita Asincrona telematica
Termine presentazione offerte 01/01/1900 ore 00:00
Data e ora inizio gara 24/04/2026 ore 09:30
Codice ID astegiudiziarie.it 4266344
6,00
167,00
0
€ 13.592

Ti interessa questa vendita?

north_east

Clicca qui per essere indirizzato alla scheda sul sito di provenienza

Bene di astegiudiziarie.it