highlight_off
Riferimento annuncio 285500 info

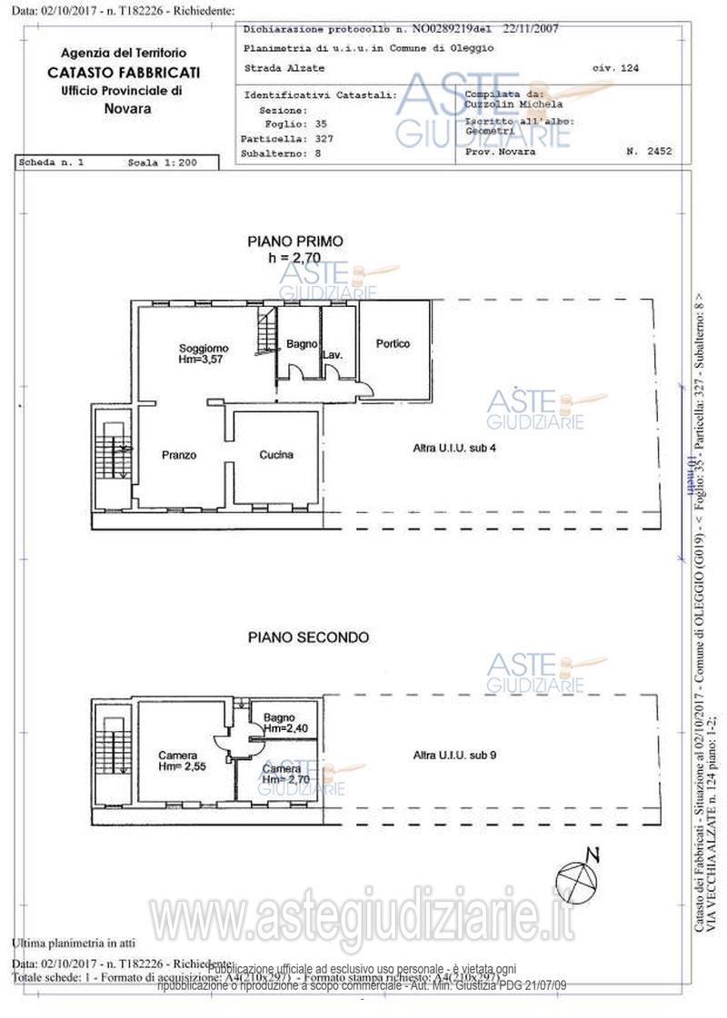
Appartamento Strada Alzate n. 124, 28047 Oleggio (NO)

0
€ 81.000
Vendita all'asta Senza incanto, con gara telematica asincrona - LOTTO 7: COMUNE DI OLEGGIO (NO) - Strada Alzate n.124LOTTO 7Si vende la quota intera Casa colonica di tre piani fuori terra con antistanti due fabbricati rustici e corte comune oltre a terreni agricoli situati nel Comune di Oleggio. Prezzo base € 81.000,00 (offerta minima € 60.750,00). Data inizio operazioni di vendita: 12/12/2025 ore 12:00. Professionista delegato alla vendita Not. Raimondo Pertusi - Email "novaraprocedureesecutive@gmail.com"; Tel. 0321640095. Custode Giudiziario Ifir Piemonte Ivg - Email "richiestevisite.novara@ivgpiemonte.it"; Tel. 0321628676. Rif. Tribunale di Novara - Esecuzione immobiliare post legge 80 n. 101/2017

Superficie mq
Vani
Bagni
Piano 0

Tipologia di vendita Giudiziaria
Modalità di vendita Asincrona telematica
Termine presentazione offerte 11/12/2025 ore 12:00
Data e ora inizio gara 12/12/2025 ore 12:00
Codice ID astegiudiziarie.it 2800884
0
€ 81.000

Ti interessa questa vendita?

north_east

Clicca qui per essere indirizzato alla scheda sul sito di provenienza

Bene di astegiudiziarie.it