highlight_off
Riferimento annuncio 316312 info

Appartamento VIA TENENTE COSSU, 07026 Olbia (SS)

0
€ 320.000
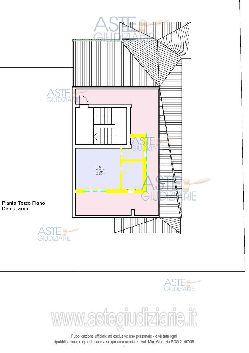
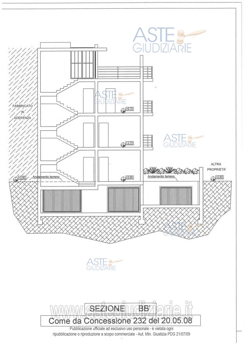
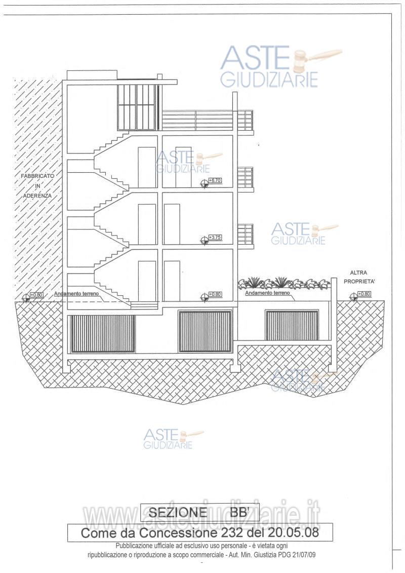
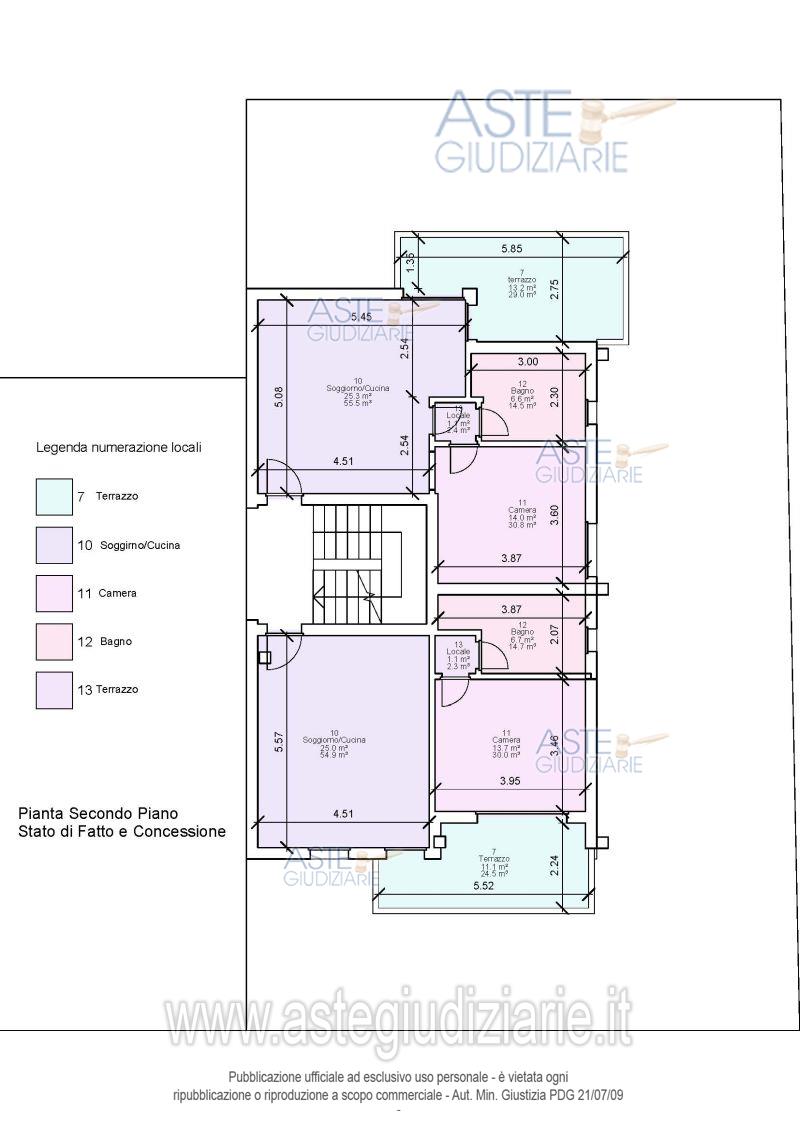
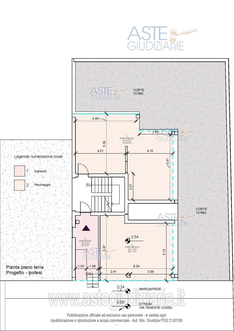
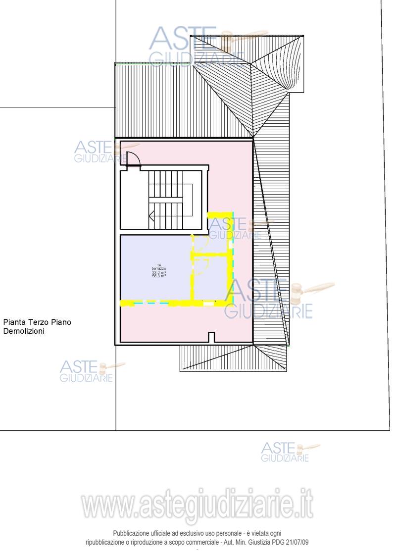
Vendita all'asta Senza incanto, con gara telematica asincrona - LOTTO UNICO: Piena proprietà degli Immobili - TERRENO DI SUPERFICIE di mq 208,FABBRICATO RESIDENZIALE mc 803,65 stato di fatto - ATTENZIONE VERIFICARE E PRENDERE NOTA DEL CONTENUTO DELLA PERIZIA DI STIMA Il lotto unico in Catasto Fabbricati:foglio 30, mappale 2693, sub 15 - a/2 - foglio 30, mappale 2693 sub 16 - A/2 -foglio 30, mappale 2693sub 17 - A/2 -foglio 30, mappale 2693sub 18 - A/2 -foglio 30, mappale 2693sub 19 - A/2 -foglio 30, mappale 2693sub 20 - C/6 -foglio 30, mappale 2693 sub 21- C/6 . Prezzo base € 320.000,00 (offerta minima € 240.000,00). Data inizio operazioni di vendita: 25/11/2025 ore 10:30. Giudice Dott. Federica Lunari. Professionista delegato alla vendita Avv. Alessandra Paola Cocco - Email "avvalessandracocco@gmail.com"; Cell. 3484989850. Custode Giudiziario Ivg Tempio Pausania - Email "visiteivgtempio@gmail.com"; Tel. 079630505. Rif. Tribunale di Tempio Pausania - Esecuzione immobiliare post legge 80 n. 61/2020

Superficie mq
Vani
Bagni
Piano 0

Tipologia di vendita Giudiziaria
Modalità di vendita Asincrona telematica
Termine presentazione offerte 01/01/1900 ore 00:00
Data e ora inizio gara 25/11/2025 ore 10:30
Codice ID astegiudiziarie.it 4335205
0
€ 320.000

Ti interessa questa vendita?

north_east

Clicca qui per essere indirizzato alla scheda sul sito di provenienza

Bene di astegiudiziarie.it