highlight_off
Riferimento annuncio 293688 info

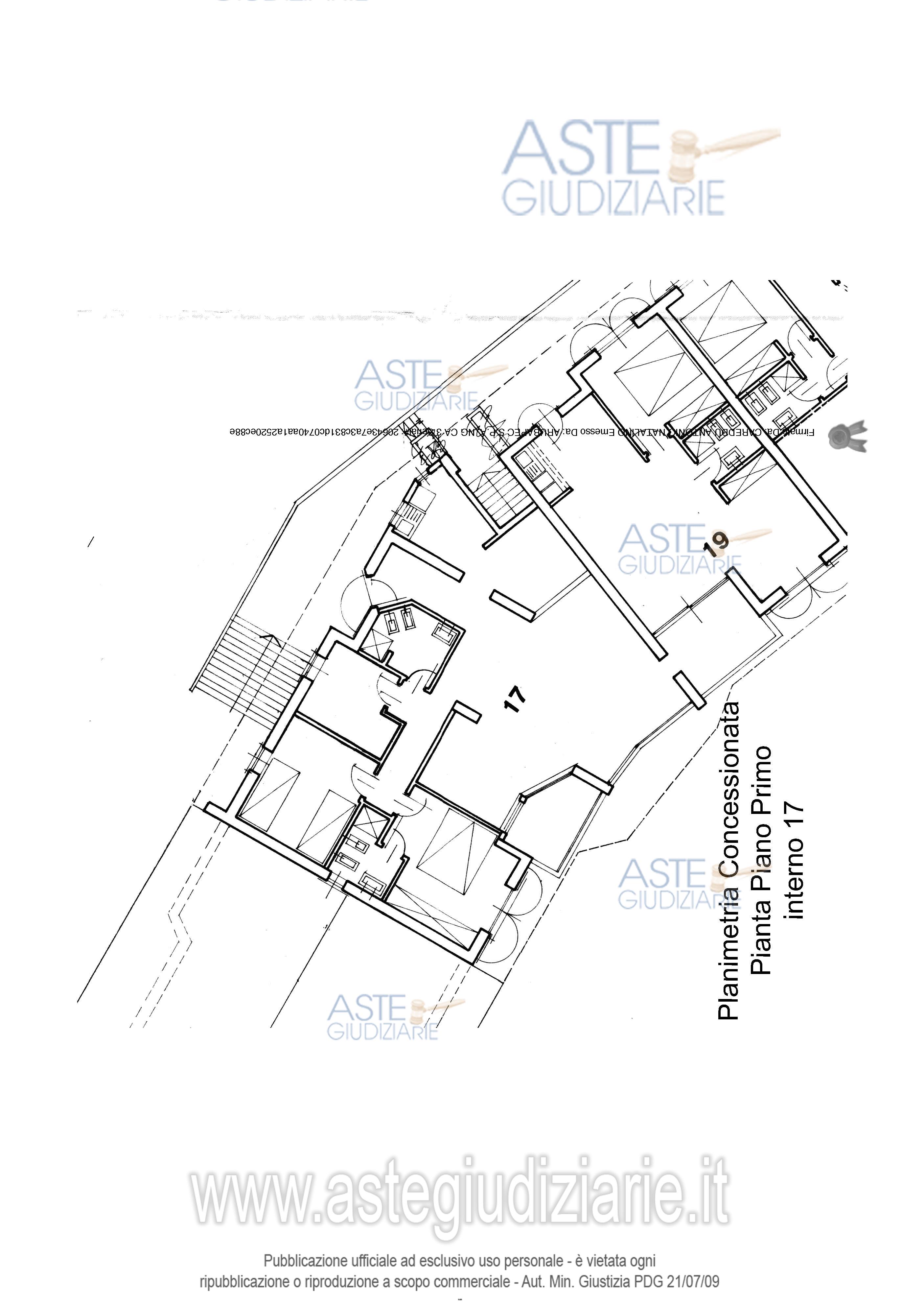
Appartamento Località Porto Rotondo, via Dell'Orsa Maggiore via delle Pleiadi, 07026 Olbia (SS)

0
€ 428.800
Vendita in attesa dell'emissione del nuovo bando d'asta. LOTTO UNICO: in Olbia Località Porto Rotondo, via Dell'Orsa Maggiore via delle Pleiadi, appartamento al P. 1, composto da 2 camere, 2 bagni, 2 locali, disimpegno, soggiorno/Pranzo/Angolo cottura, a cui si accede tramite una veranda collegata al disimpegno che collega le zone giorno e notte con bagno di servizio e terrazzo, distinto al N.C.E.U. fg. 2 part 2582 sub 13 cat. A/2 cl. 2 cons. 6 vani, rend. euro 1.022,58. Il tutto come meglio descritto nell’elaborato peritale depositato in atti e visionabile sui siti indicati. Ultimo prezzo base € 428.800,00 (offerta minima € 321.600,00). Giudice Dott. Antonia Palombella. Professionista delegato alla vendita Avv. Luisa Arras - Email "luisaarras@gmail.com"; Tel. 0794138827. Custode Giudiziario Ivg Tempio Pausania - Email "visite.ivgtempio@gmail.com"; Tel. 079630505. Rif. Tribunale di Tempio Pausania - Esecuzione immobiliare post legge 80 n. 136/2019

Superficie mq
Vani
Bagni
Piano 0

Tipologia di vendita Giudiziaria
Modalità di vendita Asincrona telematica
Termine presentazione offerte 01/01/1900 ore 00:00
Data e ora inizio gara 29/10/2025 ore 17:00
Codice ID astegiudiziarie.it 4317900
0
€ 428.800

Ti interessa questa vendita?

north_east

Clicca qui per essere indirizzato alla scheda sul sito di provenienza

Bene di astegiudiziarie.it