highlight_off
Riferimento annuncio 319987 info

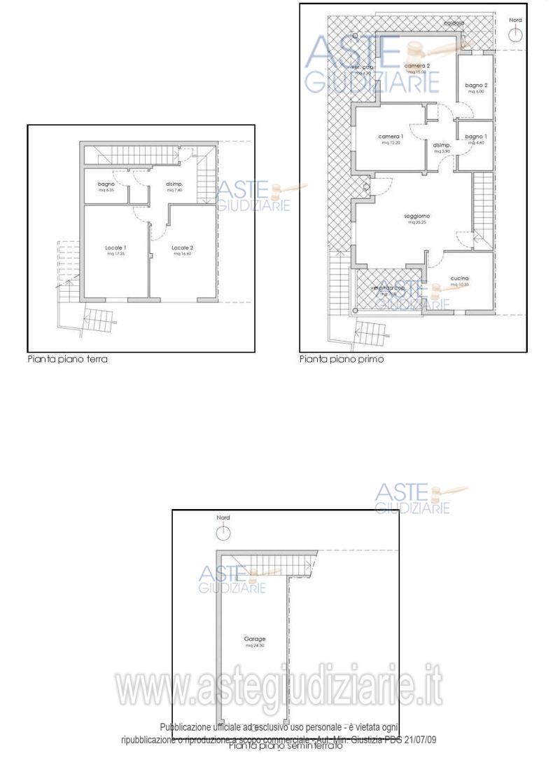
Appartamento loc. Sa Minda Noa via Parigi n. 36-38, 07026 Olbia (OT)

6,00
167,00
0
€ 342.800
Vendita all'asta Senza incanto, con gara telematica asincrona - LOTTO UNICO: appartamento di civile abitazione . Prezzo base € 342.800,00 (offerta minima € 257.100,00). Data inizio operazioni di vendita: 15/04/2026 ore 10:30. Giudice Dott. Antonia Palombella. Professionista delegato alla vendita Avv. Nicolina Anna Giagheddu - Email "linagiag@tiscali.it"; Tel. 079670282. Custode Giudiziario Ivg Tempio Pausania - Email "visite.ivgtempio@gmail.com"; Tel. 079630505. Rif. Tribunale di Tempio Pausania - Esecuzione immobiliare post legge 80 n. 279/2016

Superficie 167,00 mq
Vani 6,00
Bagni
Piano 0

Tipologia di vendita Giudiziaria
Modalità di vendita Asincrona telematica
Termine presentazione offerte 01/01/1900 ore 00:00
Data e ora inizio gara 15/04/2026 ore 10:30
Codice ID astegiudiziarie.it 4339944
6,00
167,00
0
€ 342.800

Ti interessa questa vendita?

north_east

Clicca qui per essere indirizzato alla scheda sul sito di provenienza

Bene di astegiudiziarie.it