highlight_off
Riferimento annuncio 282360 info

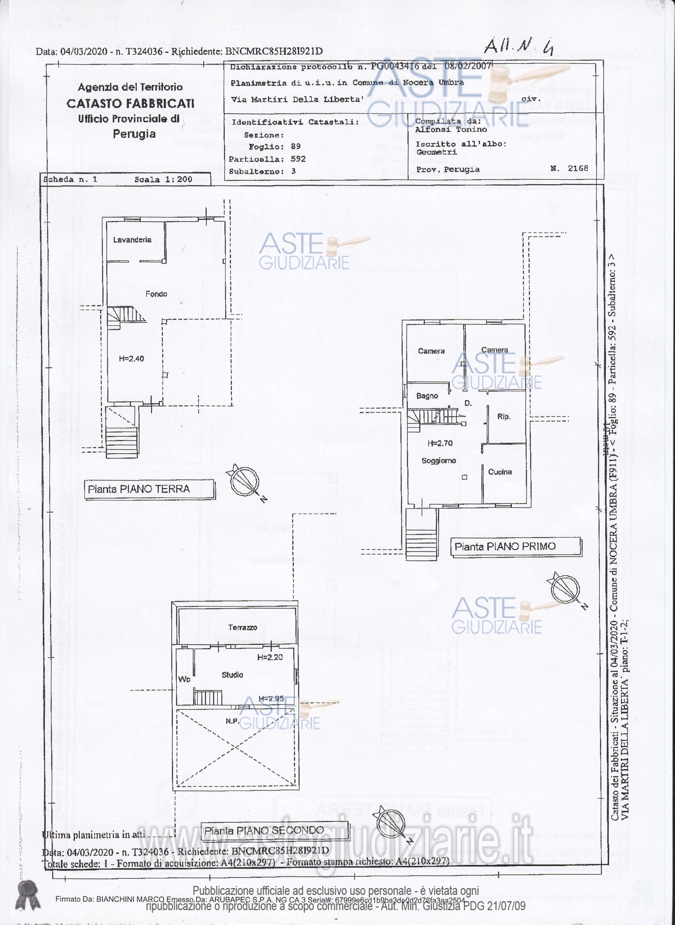
Appartamento Via Martiri della Libertà, 06025 Nocera Umbra PG, Italia, 06025 Nocera Umbra (PG)

7,50
200,00
0
€ 102.000
Vendita all'asta Senza incanto, con gara telematica sincrona mista - LOTTO UNICO: NOCERA UMBRA (PG) VIA CUPRA N. 8 (EX MARTIRI DELLA LIBERTA'). Prezzo base € 102.000,00 (offerta minima € 76.500,00). Data vendita 18/11/2025 ore 09:00. Giudice Alberto Cappellini. Professionista delegato alla vendita Avv. Roberto Calai - Email "avv.calai@libero.it"; Tel. 074344288. Custode Giudiziario Ivg Perugia - Email "visite@ivgumbria.com"; Tel. 0755913525. Rif. Tribunale di Spoleto - Esecuzione immobiliare post legge 80 n. 201/2019

Superficie 200,00 mq
Vani 7,50
Bagni
Piano 0

Tipologia di vendita Giudiziaria
Modalità di vendita Sincrona mista
Termine presentazione offerte 01/01/1900 ore 00:00
Data e ora inizio gara 18/11/2025 ore 09:00
Codice ID astegiudiziarie.it 4310271
7,50
200,00
0
€ 102.000

Ti interessa questa vendita?

north_east

Clicca qui per essere indirizzato alla scheda sul sito di provenienza

Bene di astegiudiziarie.it