highlight_off
Riferimento annuncio 321088 info

Appartamento Via Ripi, 15, 00048 Nettuno RM, Italia, 00048 Nettuno (RM)

3,00
91,00
0
€ 100.500
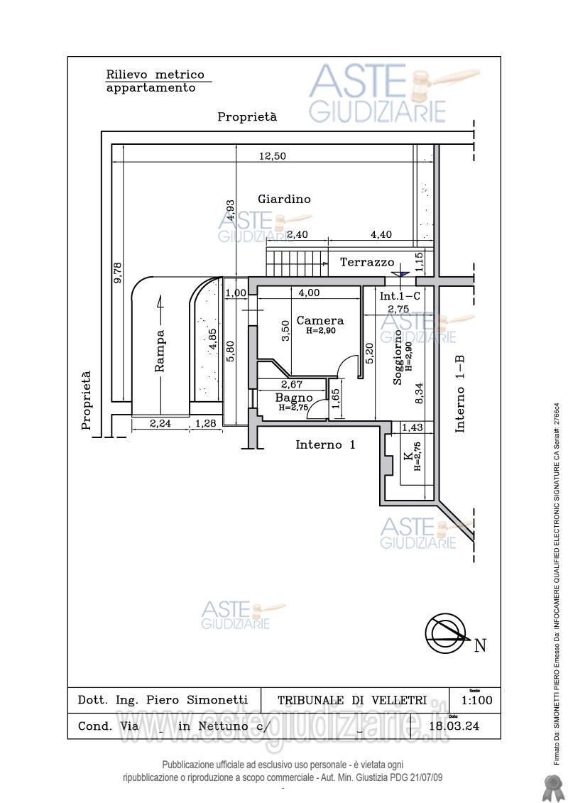
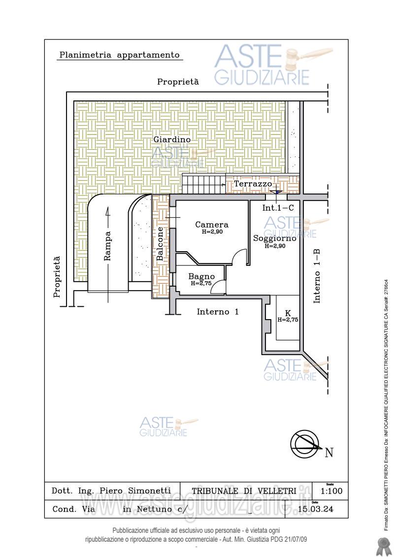
Vendita all'asta Senza incanto, con gara telematica asincrona - LOTTO UNICO: Appartamento ubicato a Nettuno (RM) – Via Ripi n.13 (rampa) e n.15 (ingresso condominiale), interno 1/C, piano terra. Trattasi di appartamento adibito ad abitazione (interno 1/C) e del garage (box A) ubicato al piano seminterrato sottostante, entrambi di proprietà dell'esecutato. Prezzo base € 100.500,00 (offerta minima € 75.375,00). Data inizio operazioni di vendita: 12/02/2026 ore 10:00. Giudice Dott. Anna Luisa Di Serafino. Professionista delegato alla vendita Avv. Alfredo Zugarini. Custode Giudiziario Avv. Alfredo Zugarini - Email "alfredozugarini@gmail.com"; Cell. 3383985247; Tel. 069628765. Rif. Tribunale di Velletri - Esecuzione immobiliare post legge 80 n. 636/2015

Superficie 91,00 mq
Vani 3,00
Bagni
Piano 0

Tipologia di vendita Giudiziaria
Modalità di vendita Asincrona telematica
Termine presentazione offerte 11/02/2026 ore 23:59
Data e ora inizio gara 12/02/2026 ore 10:00
Codice ID astegiudiziarie.it 4340923
3,00
91,00
0
€ 100.500

Ti interessa questa vendita?

north_east

Clicca qui per essere indirizzato alla scheda sul sito di provenienza

Bene di astegiudiziarie.it