highlight_off
Riferimento annuncio 228395 info

Appartamento Via Passo del Bracco n. 28, 00048 Nettuno (RM)

4,00
121,00
2
0
€ 92.000
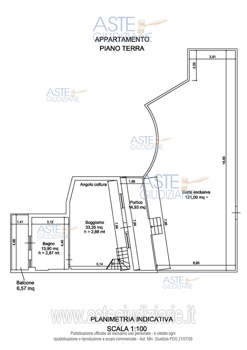
Vendita all'asta Senza incanto, con gara telematica asincrona - LOTTO UNICO: Appartamento ai piani terra-primo, con annessa corte esclusiva, composto da un soggiorno con angolo cottura, un bagno, un portico e un balcone al piano terra, e da tre camere da letto, un bagno, disimpegno e due balconi al piano primo. Prezzo base € 92.000,00 (offerta minima € 69.000,00). Data inizio operazioni di vendita: 26/03/2026 ore 10:00. Giudice Dott. Anna Luisa Di Serafino. Professionista delegato alla vendita Avv. Consuelo Lattanzio - Email "avvconsuelolattanzio@gmail.com"; Cell. 3387082399; Tel. 06-9640243. Custode Giudiziario Istituto Vendite Giudiziarie Di Roma - Email "pvp@visiteivgroma.it"; Tel. 0689164325. Rif. Tribunale di Velletri - Esecuzione immobiliare post legge 80 n. 212/2022

Superficie 121,00 mq
Vani 4,00
Bagni 2
Piano 0

Tipologia di vendita Giudiziaria
Modalità di vendita Asincrona telematica
Termine presentazione offerte 25/03/2026 ore 23:59
Data e ora inizio gara 26/03/2026 ore 10:00
Codice ID astegiudiziarie.it 4274037
4,00
121,00
2
0
€ 92.000

Ti interessa questa vendita?

north_east

Clicca qui per essere indirizzato alla scheda sul sito di provenienza

Bene di astegiudiziarie.it