highlight_off
Riferimento annuncio 331592 info

Appartamento Via Ninni Cassarà, 1, 92028 Naro (AG)

294,44
1
€ 77.436
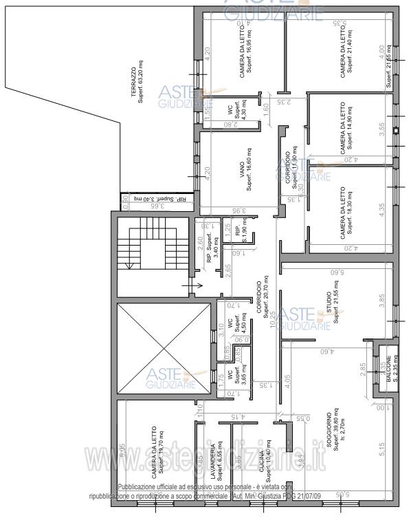
Vendita all'asta Senza incanto, con gara telematica sincrona mista - LOTTO 1: Appartamento unico ubicato a Naro (AG) - Via Ninni Cassarà,1, piano rialzato di un edificio condominiale composto da soggiorno, cucina, lavanderia, cinque camere da letto, 3 servizi igienici, due ripostigli, oltre ad una stanza adibita a studio, una a parrucchieria e una terrazza scoperta. Prezzo base € 77.436,00 (offerta minima € 58.077,00). Data vendita 10/06/2026 ore 09:00. Giudice: Dott. Domenica Spanò. Professionista delegato alla vendita: Avv. Valeria Ciancimino - Email "ciancimino.legal@virgilio.it"; Tel. 0922/20015. Custode Giudiziario: Avv. Valeria Ciancimino - Email "ciancimino.legal@virgilio.it"; Tel. 0922/20015. Rif. Tribunale di Agrigento - Esecuzione immobiliare post legge 80 n. 55/2022

Superficie 294,44 mq
Vani
Bagni
Piano 1

Tipologia di vendita Giudiziaria
Modalità di vendita Sincrona mista
Termine presentazione offerte 01/01/1900 ore 00:00
Data e ora inizio gara 10/06/2026 ore 09:00
Codice ID astegiudiziarie.it 4348656
294,44
1
€ 77.436

Ti interessa questa vendita?

north_east

Clicca qui per essere indirizzato alla scheda sul sito di provenienza

Bene di astegiudiziarie.it