highlight_off
Riferimento annuncio 325122 info

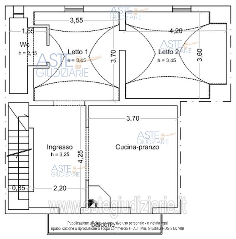
Appartamento VIA ENRICO CIALDINI 25, 73048 Nardò (LE)

4,50
71,00
0
€ 58.950
Vendita all'asta Senza incanto, con gara telematica asincrona - LOTTO UNICO: APPARTAMENTO AL PRIMO PIANO. Prezzo base € 58.950,00 (offerta minima € 44.213,00). Data inizio operazioni di vendita: 27/04/2026 ore 10:00. Giudice Dott. Anna Francesca Capone. Professionista delegato alla vendita Dott. Caterina Maggio - Email "maggioluchena@gmail.com"; Cell. 3206819399; Tel. 3206819399. Custode Giudiziario Dott. Caterina Maggio - Email "maggioluchena@gmail.com"; Cell. 3206819399; Tel. 3206819399. Rif. Tribunale di Lecce - Espropriazione immobiliare (cartabia) n. 248/2024

Superficie 71,00 mq
Vani 4,50
Bagni
Piano 0

Tipologia di vendita Giudiziaria
Modalità di vendita Asincrona telematica
Termine presentazione offerte 01/01/1900 ore 00:00
Data e ora inizio gara 27/04/2026 ore 10:00
Codice ID astegiudiziarie.it 4344205
4,50
71,00
0
€ 58.950

Ti interessa questa vendita?

north_east

Clicca qui per essere indirizzato alla scheda sul sito di provenienza

Bene di astegiudiziarie.it