highlight_off
Riferimento annuncio 89629 info

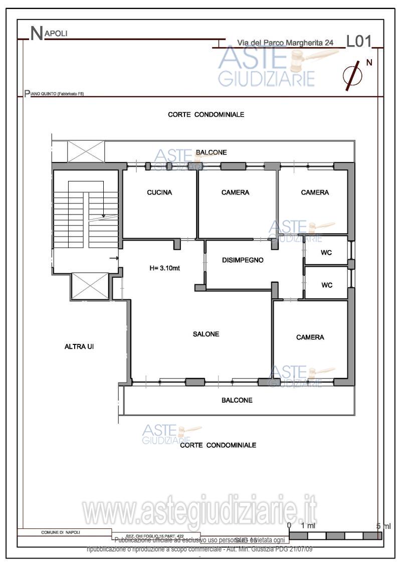
Appartamento VIA DEL PARCO MARGHERITA N. 24, 80100 Napoli (NA)

5,00
145,00
0
€ 786.286
Vendita all'asta Senza incanto, con gara telematica asincrona - LOTTO 1: Appartamento posto al piano quinto in Napoli alla via del Parco Margherita n. 24 e composto da ampio soggiorno, cucina abitabile, disimpegni, tre camere, due bagni e annessi balconi, per una superficie commerciale pari a circa 145,00 mq. Prezzo base € 786.286,00 (offerta minima € 589.714,50). Data inizio operazioni di vendita: 30/06/2026 ore 15:00. Professionista delegato alla vendita: Avv. Giorgia Viola - Email "avv.giorgiaviola@libero.it"; Tel. 081/18858628. Custode Giudiziario: Avv. Giorgia Viola - Email "avv.giorgiaviola@libero.it"; Tel. 081/18858628. Rif. Tribunale di Napoli - Esecuzione immobiliare post legge 80 n. 580/2019

Superficie 145,00 mq
Vani 5,00
Bagni
Piano 0

Tipologia di vendita Giudiziaria
Modalità di vendita Asincrona telematica
Termine presentazione offerte 29/06/2026 ore 23:59
Data e ora inizio gara 30/06/2026 ore 15:00
Codice ID astegiudiziarie.it 4206396
5,00
145,00
0
€ 786.286

Ti interessa questa vendita?

north_east

Clicca qui per essere indirizzato alla scheda sul sito di provenienza

Bene di astegiudiziarie.it