highlight_off
Riferimento annuncio 325733 info

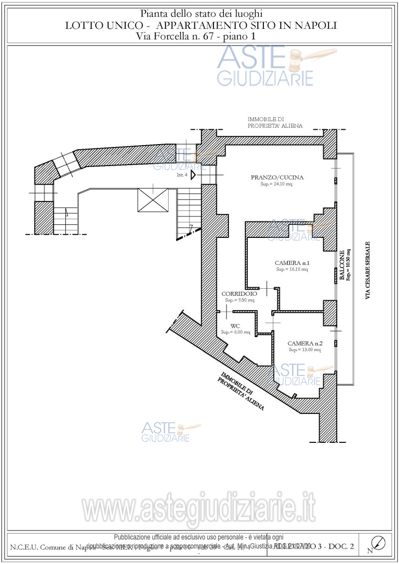
Appartamento Via Forcella, 67, 80139 Napoli NA, Italia, 80100 Napoli (NA)

68,70
0
€ 144.000
Vendita all'asta Senza incanto, con gara telematica asincrona - LOTTO UNICO: Piena proprietà di immobile sito in Napoli alla Via Forcella n. 67, posto al primo piano di un remoto fabbricato in muratura dotato di ascensore, composto da ingresso, un unico ambiente soggiorno-cucina, due camere da letto, un bagno ed un balcone. Il tutto per una superficie netta di circa 68,70 mq per l’appartamento e di circa 10,50 mq per il balcone. Prezzo base € 144.000,00 (offerta minima € 108.000,00). Data inizio operazioni di vendita: 14/04/2026 ore 10:00. Professionista delegato alla vendita Dott. Andrea Stoppelli - Email "dott.andreastoppelli@gmail.com"; Cell. 08119248255; Tel. 08119248255. Custode Giudiziario Dott. Andrea Stoppelli - Email "dott.andreastoppelli@gmail.com"; Cell. 08119248255; Tel. 08119248255. Rif. Tribunale di Napoli - Espropriazione immobiliare (cartabia) n. 161/2025

Superficie 68,70 mq
Vani
Bagni
Piano 0

Tipologia di vendita Giudiziaria
Modalità di vendita Asincrona telematica
Termine presentazione offerte 01/01/1900 ore 00:00
Data e ora inizio gara 14/04/2026 ore 10:00
Codice ID astegiudiziarie.it 4344613
68,70
0
€ 144.000

Ti interessa questa vendita?

north_east

Clicca qui per essere indirizzato alla scheda sul sito di provenienza

Bene di astegiudiziarie.it