highlight_off
Riferimento annuncio 325648 info

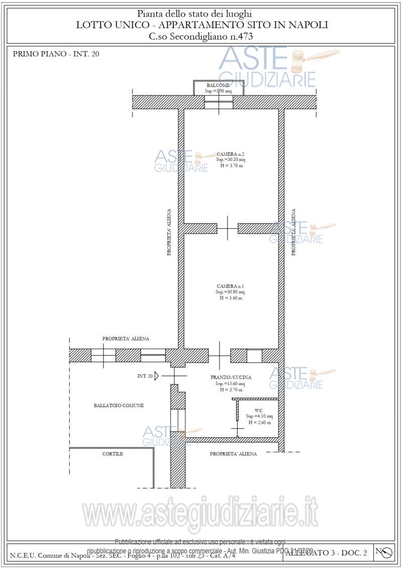
Appartamento C.so Umberto I, 473, 80142 Napoli NA, Italia, 80100 Napoli (NA)

2,50
86,00
0
€ 70.000
Vendita all'asta Senza incanto, con gara telematica asincrona - LOTTO UNICO: Piena ed intera proprietà di immobile sito in Napoli C.so Umberto I n. 473, piano 1, int. 20 (Indirizzo catastale).Si rappresenta che l’indirizzo che identifica l'immobile è c.so Secondigliano, in luogo dell’indirizzo catastale c.so Umberto I indicato in visura catastale. Il cambio di toponomastica, non inficia la corretta individuazione dell'immobile. Il compendio pignorato è ubicato in un contesto prevalentemente di tipo popolare. Prezzo base € 70.000,00 (offerta minima € 52.500,00). Data inizio operazioni di vendita: 14/04/2026 ore 15:30. Professionista delegato alla vendita Avv. Alberto Borzillo - Email "studiolegaleborzillo@gmail.com"; Cell. 3491749819; Tel. 0823752989. Custode Giudiziario Avv. Alberto Borzillo - Email "studiolegaleborzillo@gmail.com"; Cell. 3491749819; Tel. 0823752989. Rif. Tribunale di Napoli - Espropriazione immobiliare (cartabia) n. 565/2024

Superficie 86,00 mq
Vani 2,50
Bagni
Piano 0

Tipologia di vendita Giudiziaria
Modalità di vendita Asincrona telematica
Termine presentazione offerte 13/04/2026 ore 23:59
Data e ora inizio gara 14/04/2026 ore 15:30
Codice ID astegiudiziarie.it 4344617
2,50
86,00
0
€ 70.000

Ti interessa questa vendita?

north_east

Clicca qui per essere indirizzato alla scheda sul sito di provenienza

Bene di astegiudiziarie.it