highlight_off
Riferimento annuncio 319840 info

Appartamento Vico Tre Re a Toledo, 35, 80132 Napoli NA, Italia, 80100 Napoli (NA)

4,00
44,00
1
0
€ 80.784
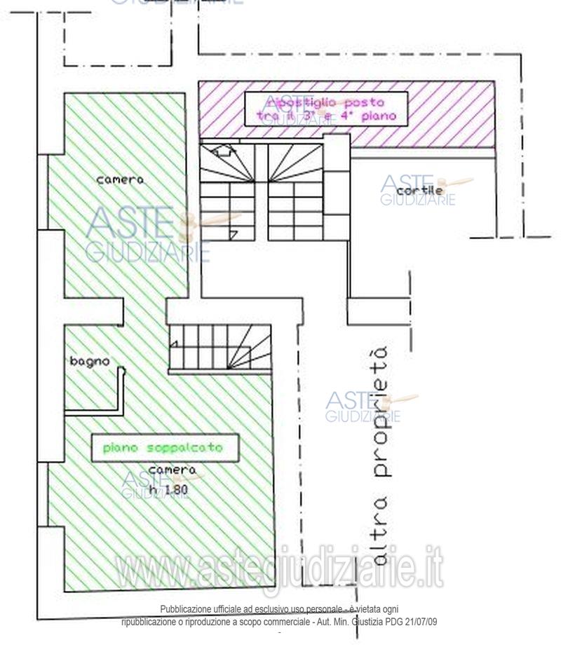
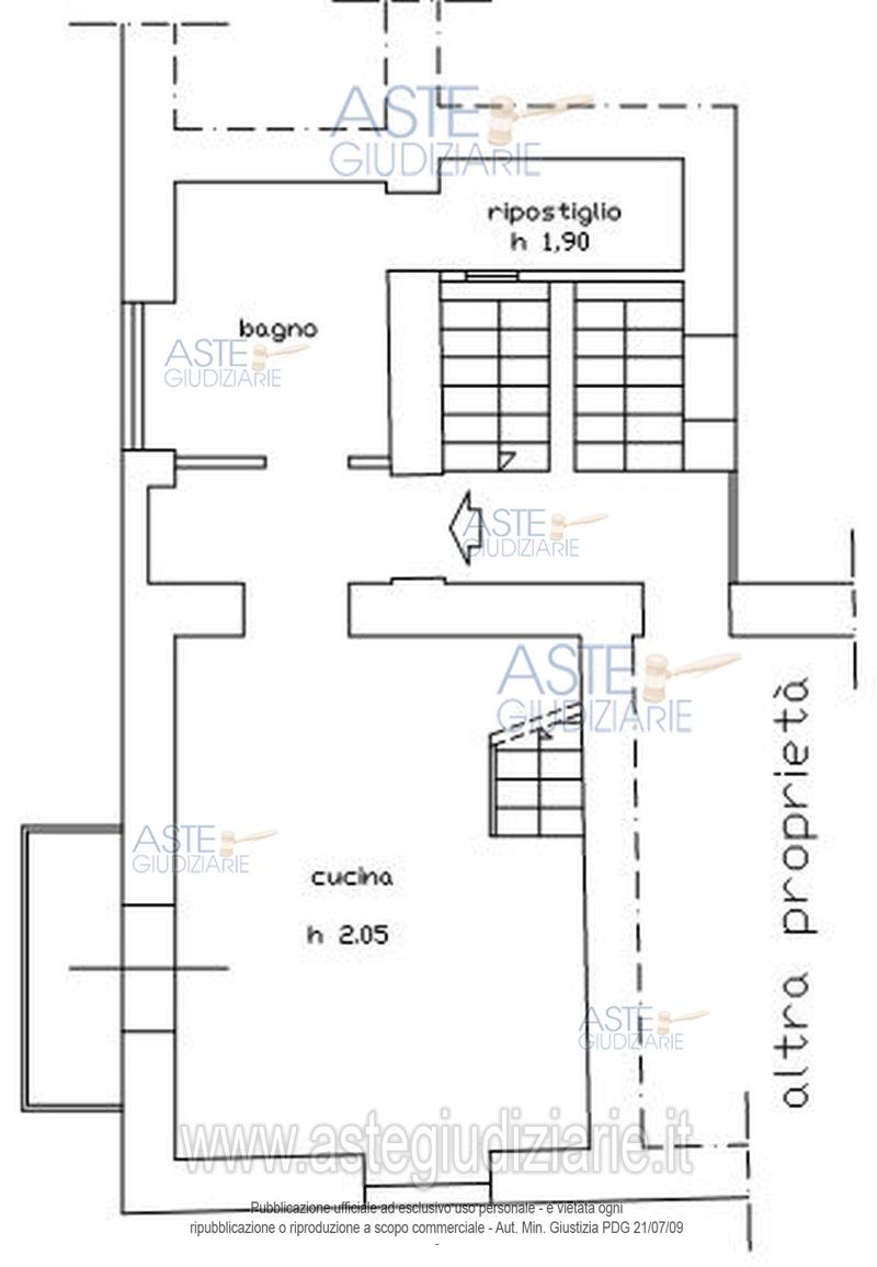
Vendita all'asta Senza incanto, con gara telematica asincrona - LOTTO 1: Piena ed intera proprietà dell’appartamento ubicato al terzo piano del fabbricato in Napoli al Vico Tre Re a Toledo n. 35, articolato su due livelli collegati tra di loro mediante una scala interna posta nel locale cucina e composto al primo livello da ingresso, cucina, bagno, ripostiglio/lavanderia e al secondo da disimpegno, due camere e bagno.Annesso ripostiglio con accesso autonomo. Prezzo base € 80.784,00 (offerta minima € 60.588,00). Data inizio operazioni di vendita: 13/01/2026 ore 15:30. Professionista delegato alla vendita Avv. Giorgia Viola - Email "avv.giorgiaviola@libero.it"; Tel. 08118858628. Custode Giudiziario Avv. Giorgia Viola - Email "avv.giorgiaviola@libero.it"; Tel. 08118858628. Rif. Tribunale di Napoli - Espropriazione immobiliare (cartabia) n. 326/2024

Superficie 44,00 mq
Vani 4,00
Bagni 1
Piano 0

Tipologia di vendita Giudiziaria
Modalità di vendita Asincrona telematica
Termine presentazione offerte 12/01/2026 ore 23:59
Data e ora inizio gara 13/01/2026 ore 15:30
Codice ID astegiudiziarie.it 4339492
4,00
44,00
1
0
€ 80.784

Ti interessa questa vendita?

north_east

Clicca qui per essere indirizzato alla scheda sul sito di provenienza

Bene di astegiudiziarie.it