highlight_off
Riferimento annuncio 315862 info

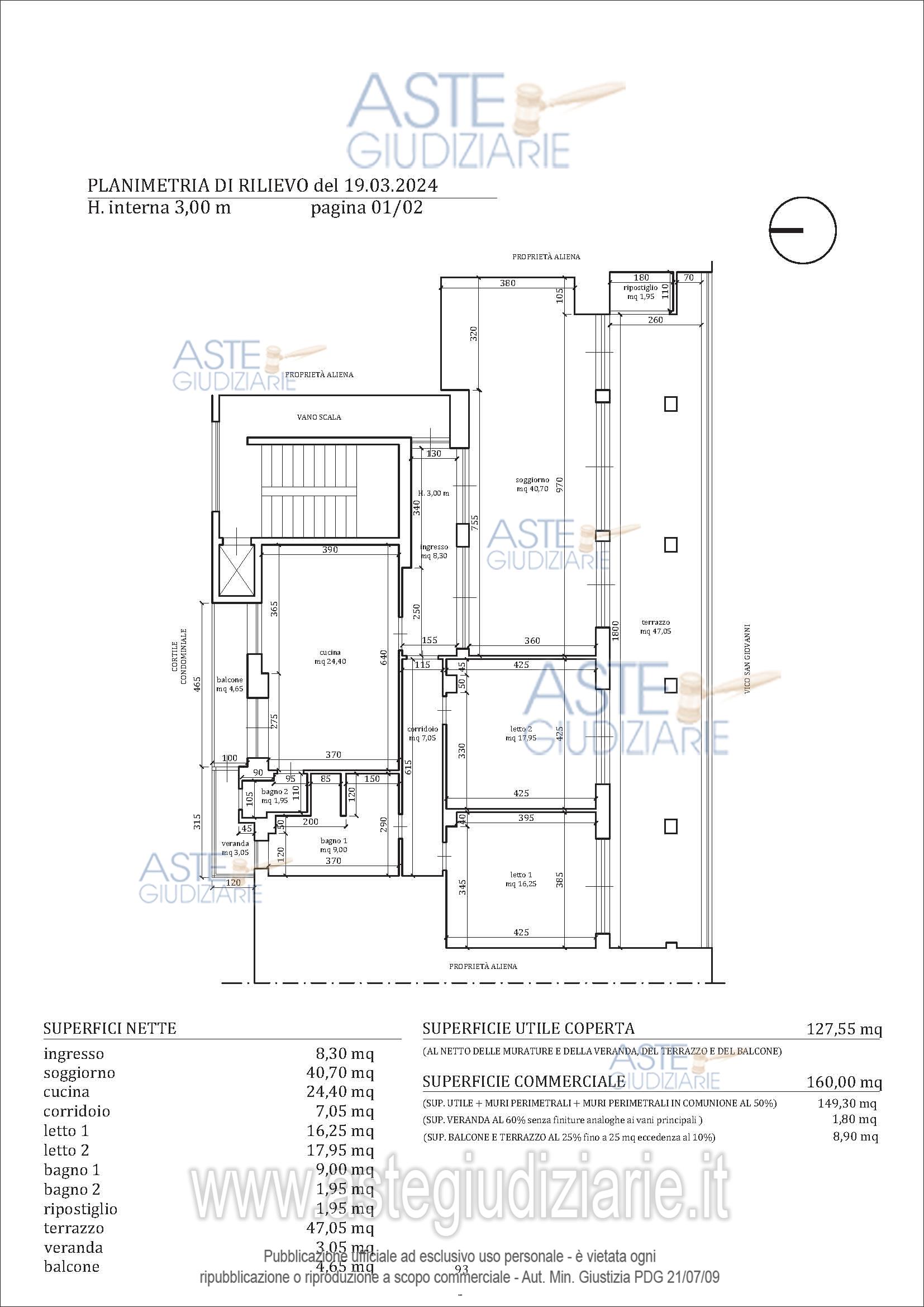
Appartamento Via Enrico Cosenz 26, 80100 Napoli (NA)

7,50
127,55
2
0
€ 337.000
Vendita all'asta Senza incanto, con gara telematica asincrona - LOTTO 1: Appartamento occupato sito in Via Enrico Cosenz n.26 (adiacenze Circumvesuviana) . Prezzo base € 337.000,00 (offerta minima € 252.750,00). Data inizio operazioni di vendita: 02/12/2025 ore 11:00. Professionista delegato alla vendita Dott. Maurizio Riccardi - Email "ric.maurizio@libero.it"; Tel. 081441108. Custode Giudiziario Dott. Maurizio Riccardi - Email "ric.maurizio@libero.it"; Tel. 081441108. Rif. Tribunale di Napoli - Esecuzione immobiliare n. 617/2023

Superficie 127,55 mq
Vani 7,50
Bagni 2
Piano 0

Tipologia di vendita Giudiziaria
Modalità di vendita Asincrona telematica
Termine presentazione offerte 01/01/1900 ore 00:00
Data e ora inizio gara 02/12/2025 ore 11:00
Codice ID astegiudiziarie.it 4336736
7,50
127,55
2
0
€ 337.000

Ti interessa questa vendita?

north_east

Clicca qui per essere indirizzato alla scheda sul sito di provenienza

Bene di astegiudiziarie.it