highlight_off
Riferimento annuncio 277784 info

Appartamento VIA SAN DONATO N.197, 80100 Napoli (NA)

5,50
100,00
0
€ 120.000
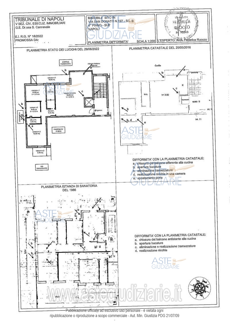
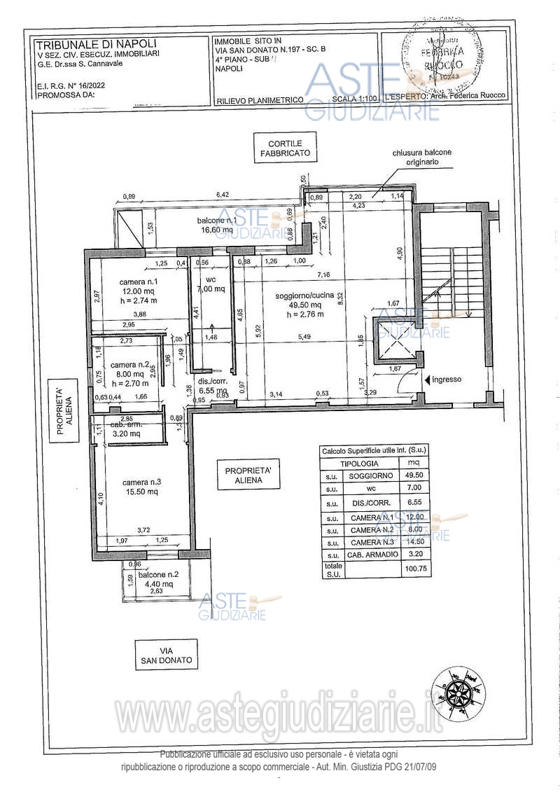
Vendita all'asta Senza incanto, con gara telematica asincrona - LOTTO UNICO: APPARTAMENTO AL QUARTO PIANO SCALA B INTERNO 12 COMPOSTO DA SOGGIORNO/CUCINA, DISIMPEGNO/CORRIDOIO, TRE CAMERE DA LETTO, UN LOCALE W.C. E DUE BALCONI. Prezzo base € 120.000,00 (offerta minima € 90.000,00). Data inizio operazioni di vendita: 24/03/2026 ore 12:00. Giudice Dott. Stefania Cannavale. Professionista delegato alla vendita Dott. Manlio Iorio - Email "studincanti@gmail.com"; Cell. 3356900318; Tel. 0815754361. Custode Giudiziario Dott. Manlio Iorio - Email "studincanti@gmail.com"; Cell. 3356900318; Tel. 0815754361. Rif. Tribunale di Napoli - Esecuzione immobiliare post legge 80 n. 160/2022

Superficie 100,00 mq
Vani 5,50
Bagni
Piano 0

Tipologia di vendita Giudiziaria
Modalità di vendita Asincrona telematica
Termine presentazione offerte 01/01/1900 ore 00:00
Data e ora inizio gara 24/03/2026 ore 12:00
Codice ID astegiudiziarie.it 4286873
5,50
100,00
0
€ 120.000

Ti interessa questa vendita?

north_east

Clicca qui per essere indirizzato alla scheda sul sito di provenienza

Bene di astegiudiziarie.it