highlight_off
Riferimento annuncio 250729 info

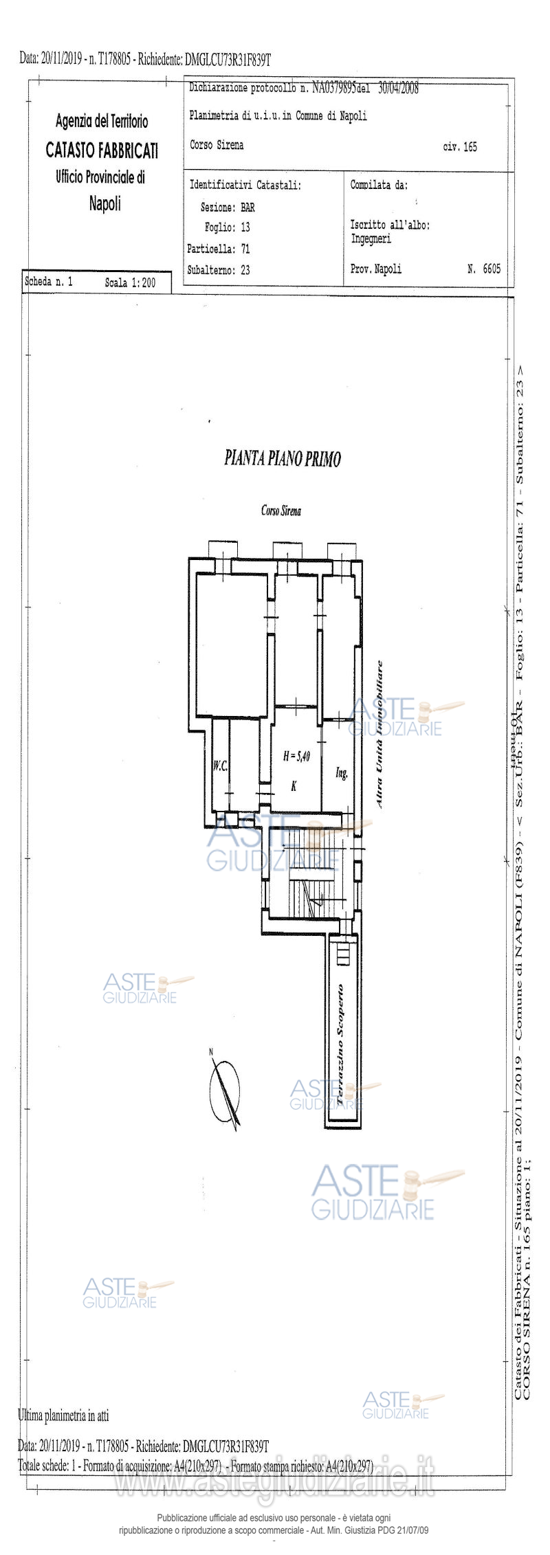
Appartamento Corso Sirena n. 165, 80100 Napoli (NA)

5,00
142,00
0
€ 49.359
Vendita all'asta Senza incanto, con gara telematica asincrona - LOTTO UNICO: appartamento posto al primo piano di un fabbricato di antichissima costruzione di epoca preottocentesca. Prezzo base € 49.359,38 (offerta minima € 37.019,54). Data inizio operazioni di vendita: 05/05/2026 ore 15:30. Giudice Guglielmo Manera. Professionista delegato alla vendita Avv. Martina Petretta - Email "martinapetretta@studiolegalepetretta.it"; Tel. 0817640332. Custode Giudiziario Avv. Martina Petretta - Email "martinapetretta@studiolegalepetretta.it"; Tel. 0817640332. Rif. Tribunale di Napoli - Esecuzione immobiliare post legge 80 n. 477/2016

Superficie 142,00 mq
Vani 5,00
Bagni
Piano 0

Tipologia di vendita Giudiziaria
Modalità di vendita Asincrona telematica
Termine presentazione offerte 01/01/1900 ore 00:00
Data e ora inizio gara 05/05/2026 ore 15:30
Codice ID astegiudiziarie.it 4285227
5,00
142,00
0
€ 49.359

Ti interessa questa vendita?

north_east

Clicca qui per essere indirizzato alla scheda sul sito di provenienza

Bene di astegiudiziarie.it