highlight_off
Riferimento annuncio 113576 info

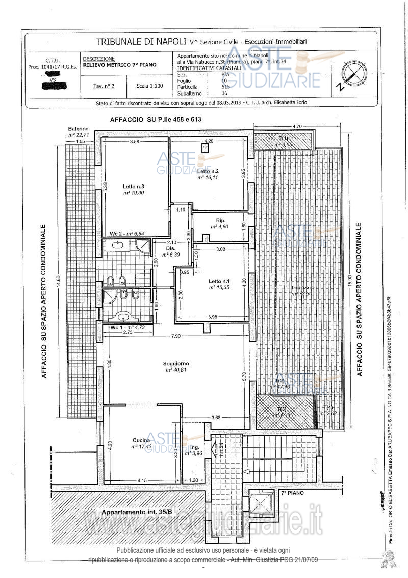
Appartamento Via Nabucco, 36, 80126 Napoli NA, Italia, 80100 Napoli (NA)

7,00
159,00
0
€ 207.000
Vendita all'asta Senza incanto, con gara telematica asincrona - LOTTO UNICO: immobile. Prezzo base € 207.000,00 (offerta minima € 155.250,00). Data inizio operazioni di vendita: 13/05/2026 ore 11:30. Professionista delegato alla vendita Avv. Chianese - Email "vanessachianese28@gmail.com". Custode Giudiziario Avv. Chianese - Email "vanessachianese28@gmail.com". Rif. Tribunale di Napoli - Esecuzione immobiliare post legge 80 n. 1041/2017

Superficie 159,00 mq
Vani 7,00
Bagni
Piano 0

Tipologia di vendita Giudiziaria
Modalità di vendita Asincrona telematica
Termine presentazione offerte 12/05/2026 ore 23:59
Data e ora inizio gara 13/05/2026 ore 11:30
Codice ID astegiudiziarie.it 4225900
7,00
159,00
0
€ 207.000

Ti interessa questa vendita?

north_east

Clicca qui per essere indirizzato alla scheda sul sito di provenienza

Bene di astegiudiziarie.it