highlight_off
Riferimento annuncio 280513 info

Appartamento Loc. Caposelvi snc, 52025 Montevarchi (AR)

292,50
0
€ 137.626
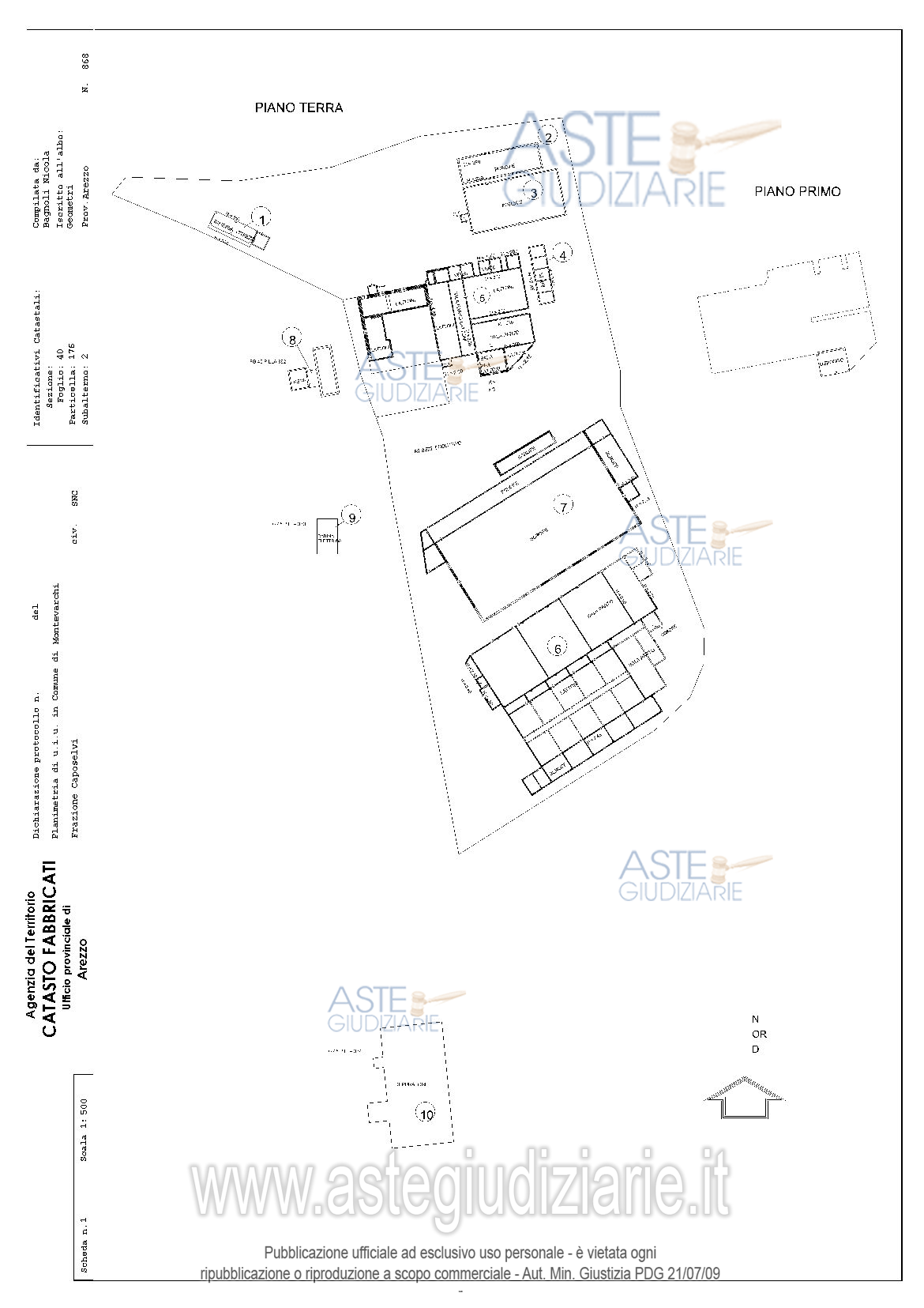
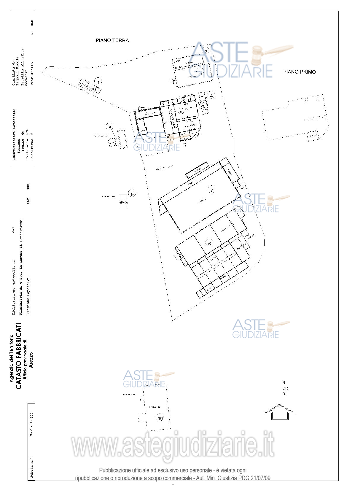
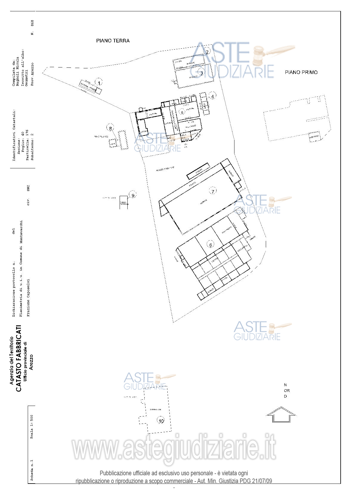
Vendita all'asta Senza incanto, con gara telematica sincrona mista - LOTTO UNICO: Diritto di piena proprietà per l’intero su compendio immobiliare costituito da un vecchio edificio colonico di impianto leopoldino e da una serie di costruzioni e volumi a carattere produttivo, funzionali per l’allevamento intensivo di suini ormai in disuso, oltre a vari appezzamenti di terreni situati zona agricola collinare nei pressi di Montevarchi, in Loc. Caposelvi. Prezzo base € 137.625,60 (offerta minima € 103.219,20). Data vendita 30/04/2026 ore 09:00. Professionista delegato alla vendita: Avv. Barbara Giannotti - Email "avvbgiannotti@yahoo.com"; Cell. 349/3683939. Custode Giudiziario: Avv. Istituto Vendite Giudiziarie Arezzo - Siena - Email "visite.ivg@gmail.com"; Tel. 0577/318111; Cell. 339/7337017. Rif. Tribunale di Arezzo - Esecuzione immobiliare post legge 80 n. 186/2020

Superficie 292,50 mq
Vani
Bagni
Piano 0

Tipologia di vendita Giudiziaria
Modalità di vendita Sincrona mista
Termine presentazione offerte 29/04/2026 ore 13:00
Data e ora inizio gara 30/04/2026 ore 09:00
Codice ID astegiudiziarie.it 4308785
292,50
0
€ 137.626

Ti interessa questa vendita?

north_east

Clicca qui per essere indirizzato alla scheda sul sito di provenienza

Bene di astegiudiziarie.it