highlight_off
Riferimento annuncio 51031 info

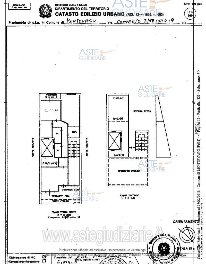
Appartamento via comandante power snc comparto b/47 lotto 19, 92010 Montevago (AG)

7,50
254,00
0
€ 23.030
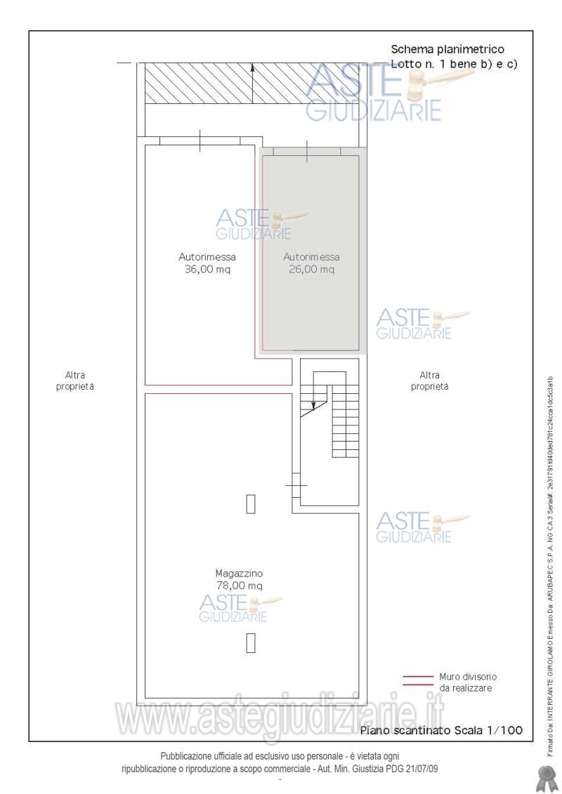
Vendita all'asta Senza incanto, con gara telematica asincrona - LOTTO 1: Abitazione (definita e completa in ogni sua parte) al piano terra, porzione del piano secondo, autorimessa piano terra (valle) e magazzino piano terra (valle) collegati tra loro e facenti parte di un edificio distribuito su due piani fuori terra, un piano sotto strada ed una mansarda praticabile sito in Montevago (AG) nella Via Comandante Power, comparto B/47, lotto 19, s.n.c., in buono stato di conservazione. Prezzo base € 23.029,68 (offerta minima € 17.272,26). Data inizio operazioni di vendita: 18/11/2025 ore 16:00. Professionista delegato alla vendita Avv. Salvatore Roberto - Email "salvinoroberto@gmail.com"; Tel. 092526944. Custode Giudiziario Avv. Salvatore Roberto - Email "salvinoroberto@gmail.com"; Tel. 092526944. Rif. Tribunale di Sciacca - Esecuzione immobiliare post legge 80 n. 50/2017

Superficie 254,00 mq
Vani 7,50
Bagni
Piano 0

Tipologia di vendita Giudiziaria
Modalità di vendita Asincrona telematica
Termine presentazione offerte 17/11/2025 ore 12:00
Data e ora inizio gara 18/11/2025 ore 16:00
Codice ID astegiudiziarie.it 2804498
7,50
254,00
0
€ 23.030

Ti interessa questa vendita?

north_east

Clicca qui per essere indirizzato alla scheda sul sito di provenienza

Bene di astegiudiziarie.it