Riferimento annuncio 308074
        
    
    Appartamento Via Fratelli Bandiera, 11, 65015 Montesilvano PE, Italia, 65015 Montesilvano (PE)
                
                5,50
            
            
                
                138,90
            
            
                
                0
            
        
€ 128.250    
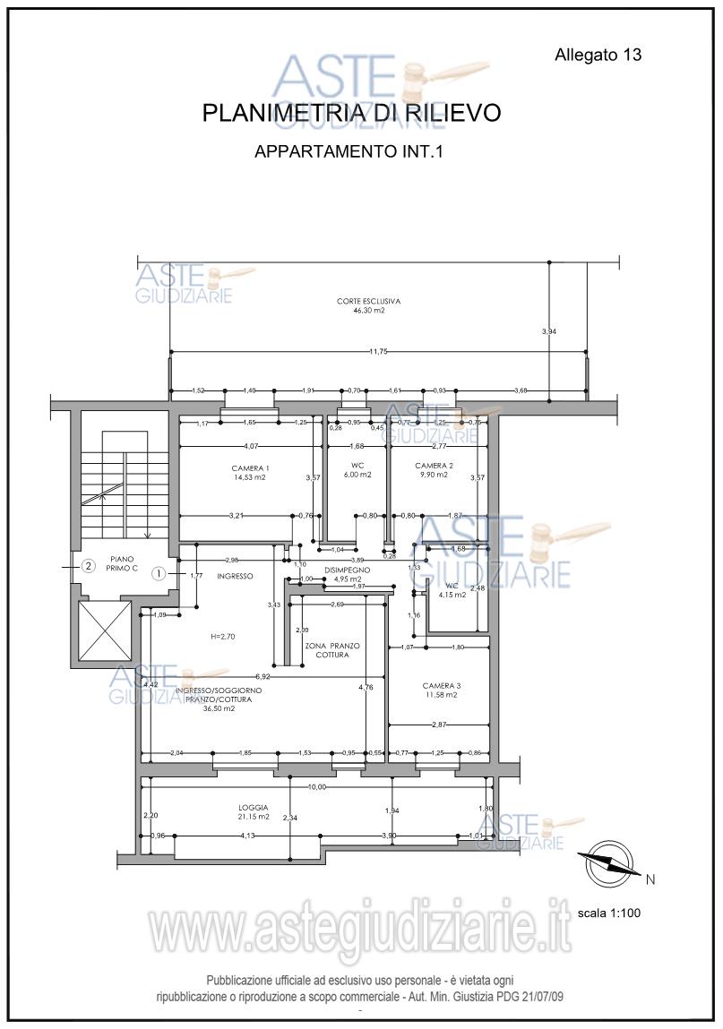
                Vendita all'asta Senza incanto, con gara telematica asincrona - LOTTO UNICO:  Appartamento al piano primo, cantina al piano terreno e posto auto. Prezzo base € 128.250,00 (offerta minima € 96.188,00). Data inizio operazioni di vendita: 16/12/2025 ore 09:00. Professionista delegato alla vendita Dott. Vincenzo Intilangelo. Custode Giudiziario Dott. Vincenzo Intilangelo - Email "vintilangelo@studiodimajo.it".  Rif. Tribunale di Pescara - Espropriazione immobiliare (cartabia) n. 225/2024
            
   
| Superficie | 138,90 mq | 
|---|---|
| Vani | 5,50 | 
| Bagni | |
| Piano | 0 | 
| Tipologia di vendita | Giudiziaria | 
|---|---|
| Modalità di vendita | Asincrona telematica | 
| Termine presentazione offerte | 15/12/2025 ore 12:00 | 
| Data e ora inizio gara | 16/12/2025 ore 09:00 | 
 
                         
                         
                         
                         
                         
                        