highlight_off
Riferimento annuncio 304047 info

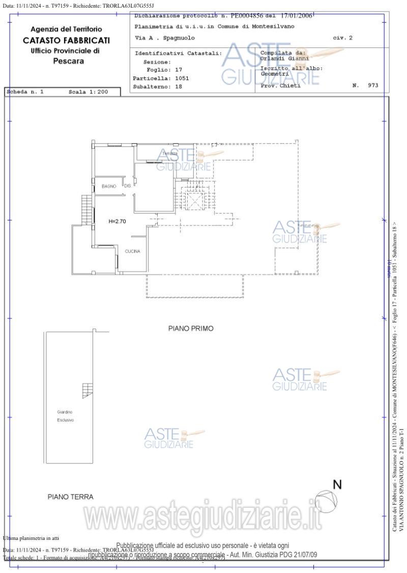
Appartamento Via A. Spagnuolo, 2, 65015 Montesilvano PE, Italia, 65015 Montesilvano (PE)

5,00
114,19
0
€ 84.305
Vendita all'asta Senza incanto, con gara telematica asincrona - LOTTO UNICO: Appartamento al primo piano con giardino esclusivo al piano terra e garage, ubicato a Montesilvano (PE) alla Via Antonio Spagnuolo n. 2. Prezzo base € 84.304,50 (offerta minima € 63.228,38). Data inizio operazioni di vendita: 25/11/2025 ore 09:00. Giudice Daniela Angelozzi. Professionista delegato alla vendita Avv. Paola Di Spirito. Custode Giudiziario Avv. Paola Di Spirito - Email "dispiritopaola@gmail.com"; Cell. 3333447393; Tel. 0856921393. Rif. Tribunale di Pescara - Espropriazione immobiliare (cartabia) n. 173/2024

Superficie 114,19 mq
Vani 5,00
Bagni
Piano 0

Tipologia di vendita Giudiziaria
Modalità di vendita Asincrona telematica
Termine presentazione offerte 24/11/2025 ore 12:00
Data e ora inizio gara 25/11/2025 ore 09:00
Codice ID astegiudiziarie.it 4327058
5,00
114,19
0
€ 84.305

Ti interessa questa vendita?

north_east

Clicca qui per essere indirizzato alla scheda sul sito di provenienza

Bene di astegiudiziarie.it