highlight_off
Riferimento annuncio 310047 info

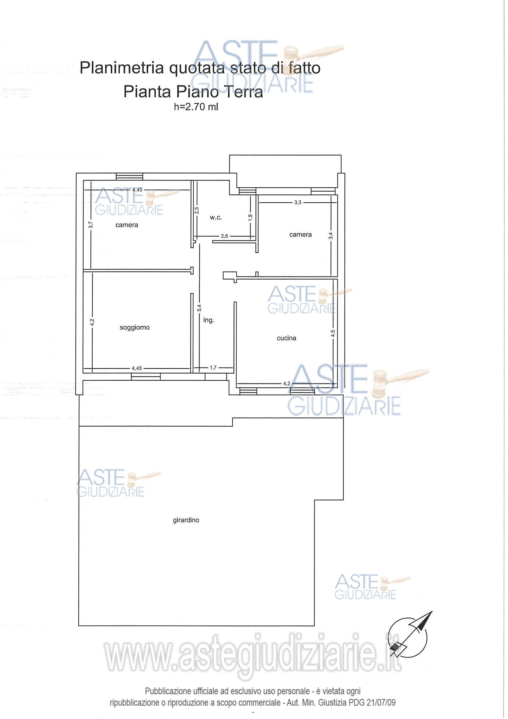
Appartamento via Don Luigi Sturzo, 5, 88060 Montepaone (CZ)

5,00
109,00
0
€ 102.000
Vendita in attesa dell'emissione del nuovo bando d'asta. LOTTO 0: Appartamento, consistenza 5 vani superficie mq 109, piano T. Ultimo prezzo base € 102.000,00 (offerta minima € 76.500,00). Giudice Dott. Chiara Di Credico. Professionista delegato alla vendita Avv. Vincenzo Arcidiacono - Email "arcidiaconovincenzo@libero.it"; Tel. 096722212. Custode Giudiziario Avv. Vincenzo Arcidiacono - Email "arcidiaconovincenzo@libero.it"; Tel. 096722212. Rif. Tribunale di Catanzaro - Espropriazione immobiliare (cartabia) n. 17/2024

Superficie 109,00 mq
Vani 5,00
Bagni
Piano 0

Tipologia di vendita Giudiziaria
Modalità di vendita Asincrona telematica
Termine presentazione offerte 29/09/2025 ore 12:00
Data e ora inizio gara 30/09/2025 ore 12:00
Codice ID astegiudiziarie.it 4331764
5,00
109,00
0
€ 102.000

Ti interessa questa vendita?

north_east

Clicca qui per essere indirizzato alla scheda sul sito di provenienza

Bene di astegiudiziarie.it