highlight_off
Riferimento annuncio 312445 info

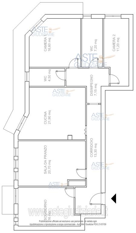
Appartamento Via Taverna Campanile, 335, 83024 Monteforte Irpino AV, Italia, 83024 Monteforte Irpino (AV)

2,00
210,00
0
€ 94.500
Vendita all'asta Senza incanto, con gara telematica sincrona - LOTTO 1: Appartamento è sito in Monteforte Irpino alla Via Tav. Campanile n.335, registrato al catasto fabbricati al foglio 27, particella 523 sub 56, e facente parte di un palazzo condominiale. L’appartamento è collocato al terzo piano dell’edificio, accessibile dalla scala Condominiale B, ed ha una superficie all’incirca di 120 mq circa e ha a disposizione oltre a due box auto anche un parcheggio esterno. Il condominio è autorizzato dalla: Concessione edilizia n.171/84 e successiva variante n.150/85 del 15/9/85. Prezzo base € 94.500,00 (offerta minima € 70.875,00). Data vendita 17/07/2026 ore 10:00. Professionista delegato alla vendita: Dott. Adele Iannaccone - Email "dott.adeleiannaccone@gmail.com"; Tel. 0825/32685; Cell. 333/3532267. Custode Giudiziario: Dott. Adele Iannaccone - Email "dott.adeleiannaccone@gmail.com"; Tel. 0825/32685; Cell. 333/3532267. Rif. Tribunale di Avellino - Esecuzione immobiliare post legge 80 n. 128/2022

Superficie 210,00 mq
Vani 2,00
Bagni
Piano 0

Tipologia di vendita Giudiziaria
Modalità di vendita Sincrona telematica
Termine presentazione offerte 16/07/2026 ore 12:00
Data e ora inizio gara 17/07/2026 ore 10:00
Codice ID astegiudiziarie.it 4333958
2,00
210,00
0
€ 94.500

Ti interessa questa vendita?

north_east

Clicca qui per essere indirizzato alla scheda sul sito di provenienza

Bene di astegiudiziarie.it