highlight_off
Riferimento annuncio 310399 info

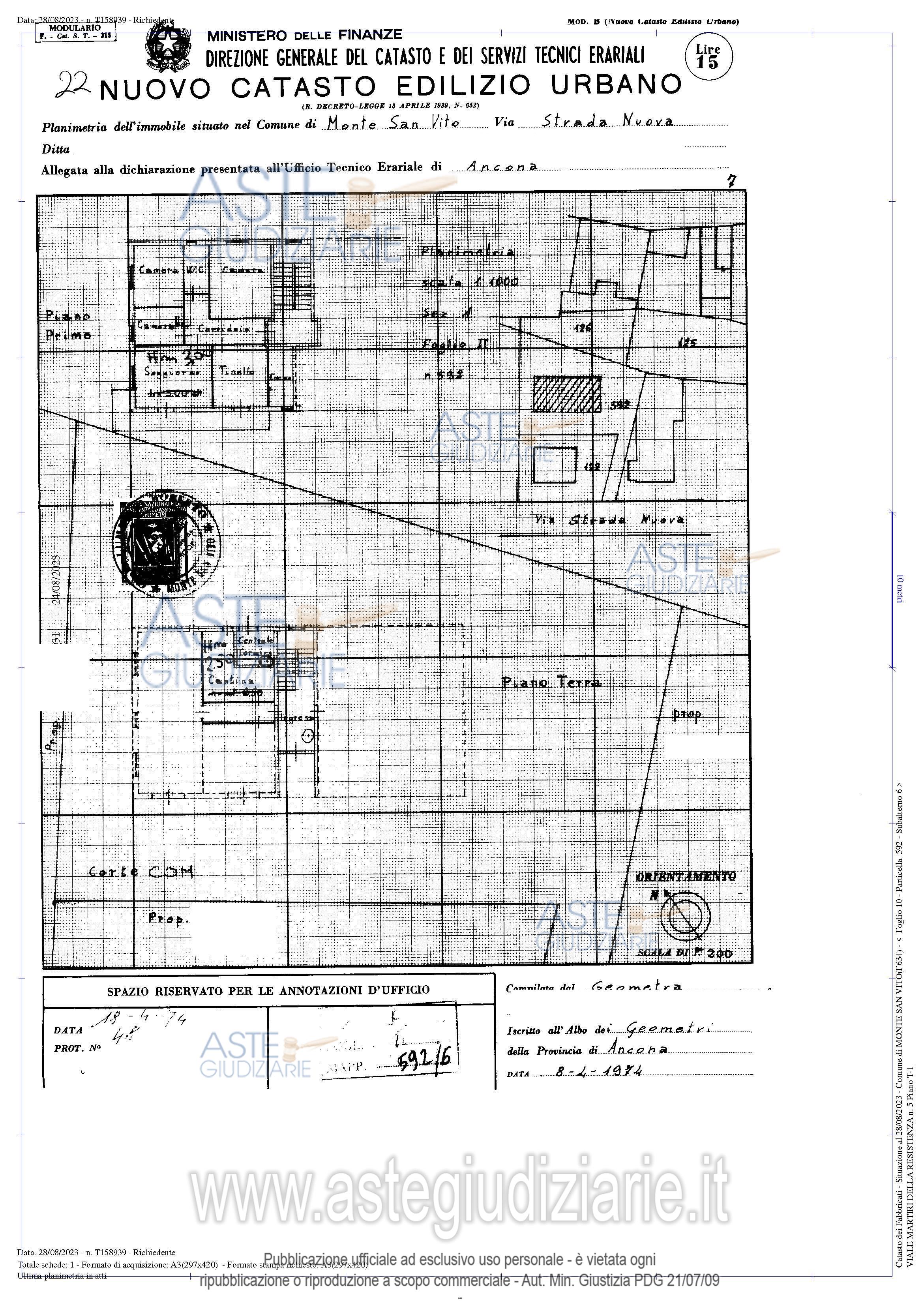
Appartamento Via Martiri della Resistenza n. 11, 60037 Monte San Vito (AN)

6,00
115,00
0
€ 80.000
Vendita all'asta Senza incanto, con gara telematica asincrona - LOTTO 1: Per la piena ed intera proprietà oltre a una cantina al piano terra, Appartamento di circa 95 mq netti, posto al primo piano di una palazzina di tre piani fuori terra e soffitta, sita in Via Martiri della Resistenza n. 11 oltre ad una cantina al piano terra. La palazzina è stata edificata agli inizi degli anni “70” ed è costituita da un totale di cinque appartamenti, più garage e cantine. L’appartamento è così distribuito: zona giorno, composta da tinello, cucinino e soggiorno, esposta a sud-ovest con accesso al balcone sia dal soggiorno che dal tinello, zona notte composta da due camere da letto, studio e bagno. Impianto di riscaldamento autonomo. Alla cantina, di circa 14 mq netti e con un altezza di circa 2,50 m si accede dall’ingresso condominiale al piano terra, tramite un corridoio comune ad altre unità ed è dotata di impianto elettrico e idrico (lavabo e relativo scarico). Prezzo base € 80.000,00 (offerta minima € 80.000,00). Data inizio operazioni di vendita: 09/06/2026 ore 12:00. Giudice: Dott. Giuliana Filippello. Liquidatore: Dott. Valeria Candelori. Soggetto specializzato alla vendita: Aste Giudiziarie Inlinea S.P.A. - Email "vendite@astegiudiziarie.it"; Tel. 0586/20141. Rif. Tribunale di Ancona - Crisi da sovraindebitamento n. 147/2019

Superficie 115,00 mq
Vani 6,00
Bagni
Piano 0

Tipologia di vendita Giudiziaria
Modalità di vendita Asincrona telematica
Termine presentazione offerte 08/06/2026 ore 12:00
Data e ora inizio gara 09/06/2026 ore 12:00
Codice ID astegiudiziarie.it 4332129
6,00
115,00
0
€ 80.000

Ti interessa questa vendita?

north_east

Clicca qui per essere indirizzato alla scheda sul sito di provenienza

Bene di astegiudiziarie.it