highlight_off
Riferimento annuncio 304232 info

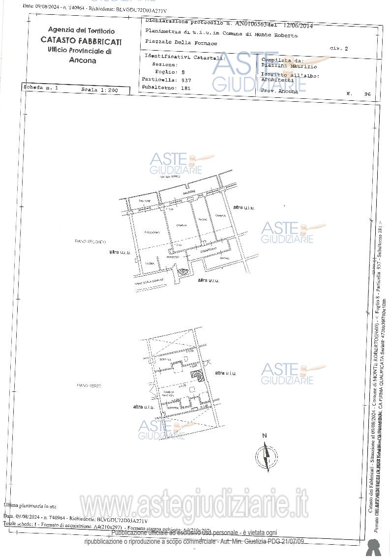
Appartamento Piazzale della Fornace, 2, 60030 Pianello Vallesina AN, Italia, 60030 Monte Roberto (AN)

6,50
152,00
0
€ 49.781
Vendita all'asta Senza incanto, con gara telematica asincrona - LOTTO 77: LOTTO 77 (in perizia lotto 2.5).Appartamento (bene n. 118) di civile abitazione facente parte del “Blocco A”, posto sui piani secondo e terzo, con accesso tramite il portone condominiale dal civico n. 2 di Piazzale della Fornace, con annesso posto auto (bene n. 10) al piano interrato. Prezzo base € 49.781,00 (offerta minima € 37.336,00). Data inizio operazioni di vendita: 11/12/2025 ore 11:00. Giudice Giuliana Filippello. Professionista delegato alla vendita Not. Luigi Olmi - Email "esecuzioni@studionotarilebucciolmi.it"; Tel. 071206866. Custode Giudiziario Avv. Gianluca Spinsanti - Email "g.spinsanti@studiolegalerossini.eu"; Tel. 0712075613. Rif. Tribunale di Ancona - Espropriazione immobiliare (cartabia) n. 41/2024

Superficie 152,00 mq
Vani 6,50
Bagni
Piano 0

Tipologia di vendita Giudiziaria
Modalità di vendita Asincrona telematica
Termine presentazione offerte 10/12/2025 ore 12:00
Data e ora inizio gara 11/12/2025 ore 11:00
Codice ID astegiudiziarie.it 4327231
6,50
152,00
0
€ 49.781

Ti interessa questa vendita?

north_east

Clicca qui per essere indirizzato alla scheda sul sito di provenienza

Bene di astegiudiziarie.it