highlight_off
Riferimento annuncio 321815 info

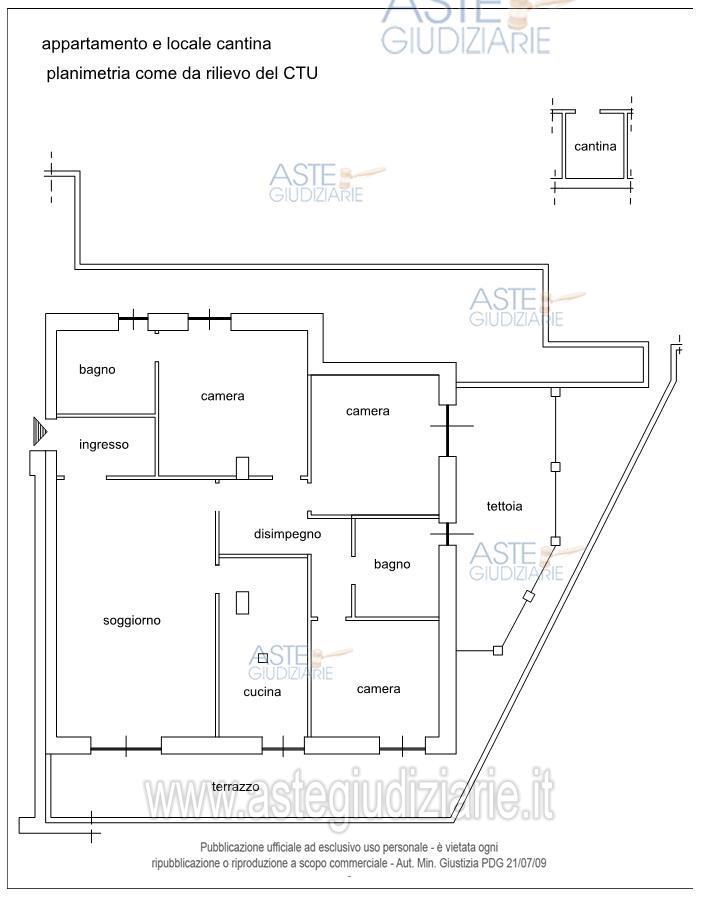
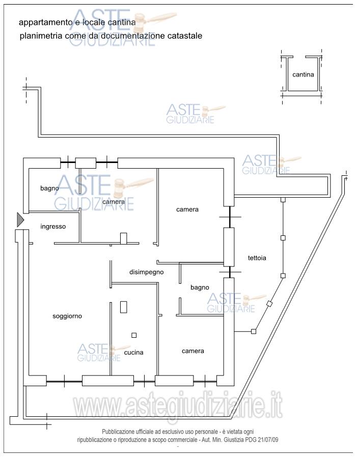
Appartamento Via XXV Luglio, 00040 Monte Porzio Catone RM, Italia, 00078 Monte Porzio Catone (RM)

6,50
163,00
2
0
€ 302.000
Vendita all'asta Senza incanto, con gara telematica asincrona - LOTTO UNICO: Appartamento al primo piano e posto auto scoperto al piano terra. Prezzo base € 302.000,00 (offerta minima € 226.500,00). Data inizio operazioni di vendita: 20/02/2026 ore 12:30. Professionista delegato alla vendita Avv. Sara Di Geronimo. Custode Giudiziario Avv. Sara Di Geronimo - Email "info@studiodigeronimo.com"; Tel. 0694018070. Rif. Tribunale di Velletri - Espropriazione immobiliare (cartabia) n. 393/2024

Superficie 163,00 mq
Vani 6,50
Bagni 2
Piano 0

Tipologia di vendita Giudiziaria
Modalità di vendita Asincrona telematica
Termine presentazione offerte 01/01/1900 ore 00:00
Data e ora inizio gara 20/02/2026 ore 12:30
Codice ID astegiudiziarie.it 4341669
6,50
163,00
2
0
€ 302.000

Ti interessa questa vendita?

north_east

Clicca qui per essere indirizzato alla scheda sul sito di provenienza

Bene di astegiudiziarie.it