highlight_off
Riferimento annuncio 310060 info

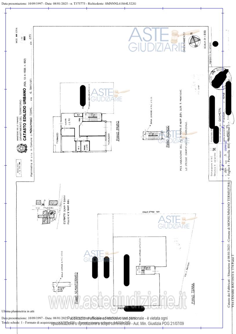
Appartamento Via Cesare Battisti, 530, 51015 Monsummano Terme PT, Italia, 51015 Monsummano Terme (PT)

7,00
119,00
0
€ 144.000
Vendita all'asta Senza incanto, con gara telematica asincrona - LOTTO 2: Appartamento e garage. Prezzo base € 144.000,00 (offerta minima € 108.000,00). Data inizio operazioni di vendita: 15/10/2025 ore 09:30. Giudice Dott. Nicoletta Maria Caterina Curci. Professionista delegato alla vendita Avv. Caterina Amadori. Custode Giudiziario Isveg - Email "prenota.pt@isveg.it". Rif. Tribunale di Pistoia - Espropriazione immobiliare (cartabia) n. 156/2024

Superficie 119,00 mq
Vani 7,00
Bagni
Piano 0

Tipologia di vendita Giudiziaria
Modalità di vendita Asincrona telematica
Termine presentazione offerte 14/10/2025 ore 12:00
Data e ora inizio gara 15/10/2025 ore 09:30
Codice ID astegiudiziarie.it 4331777
7,00
119,00
0
€ 144.000

Ti interessa questa vendita?

north_east

Clicca qui per essere indirizzato alla scheda sul sito di provenienza

Bene di astegiudiziarie.it