highlight_off
Riferimento annuncio 320620 info

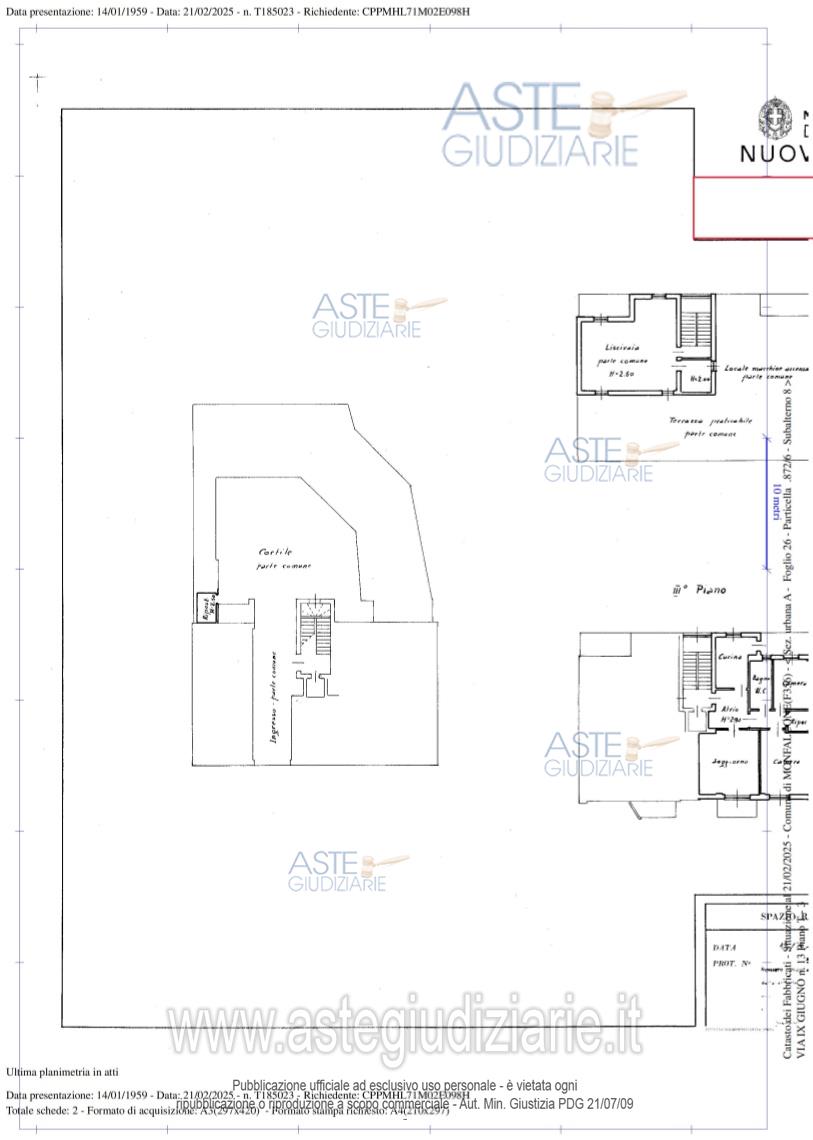
Appartamento Via IX Giugno, 13, 34074 Monfalcone GO, Italia, 34074 Monfalcone (GO)

5,50
106,27
3
€ 79.200
Vendita all'asta Senza incanto, con gara telematica sincrona mista - LOTTO UNICO: Appartamento a Moinfalcone in via IX Giugno n. 13 della superifice commerciale di 106,27 mq per la quota di 1/1 di piena proprietà consistente in una unità immobiliare al piano terzo, all'interno di un complesso condominiale di dodici alloggi e tre negozi, e ripostiglio-legnaia in corpo pertinenziale nella corte interna comune. Prezzo base € 79.200,00 (offerta minima € 59.400,00). Data vendita 03/02/2026 ore 11:00. Professionista delegato alla vendita Avv. Aurora Turco - Email "aurora@avvocatoturco.eu"; Tel. 0481412883. Custode Giudiziario Avv. Aurora Turco - Email "aurora@avvocatoturco.eu"; Tel. 0481412883. Rif. Tribunale di Gorizia - Espropriazione immobiliare (cartabia) n. 119/2024

Superficie 106,27 mq
Vani 5,50
Bagni
Piano 3

Tipologia di vendita Giudiziaria
Modalità di vendita Sincrona mista
Termine presentazione offerte 30/01/2026 ore 12:00
Data e ora inizio gara 03/02/2026 ore 11:00
Codice ID astegiudiziarie.it 4340475
5,50
106,27
3
€ 79.200

Ti interessa questa vendita?

north_east

Clicca qui per essere indirizzato alla scheda sul sito di provenienza

Bene di astegiudiziarie.it