highlight_off
Riferimento annuncio 323511 info

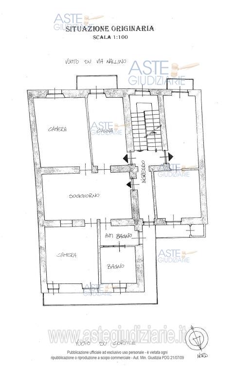
Appartamento Via Pietro Nallino, 12084 Mondovì CN, Italia, 12084 Mondovì (CN)

118,00
0
€ 80.262
Vendita all'asta Senza incanto, con gara telematica asincrona - LOTTO Unico: Piena e perfetta proprietà per una quota pari all’intero dell’appartamento ad uso civile abitazione ubicato al piano primo del maggior fabbricato con accesso dalla Via Nallino n. 17, composto di ingresso, soggiorno, cucina, ripostiglio, due camere, anti bagno e bagno e due balconi; completa la consistenza un locale pertinenziale ubicato al piano quarto. Prezzo base € 80.262,00 (offerta minima € 80.262,00). Data inizio operazioni di vendita: 10/06/2026 ore 11:00. In caso di più offerte valide si procederà a gara che inizierà il 10/06/2026 ore 11:00 e terminerà il 17/06/2026 ore 11:00. Giudice: Dott. Paola Elefante. Professionista delegato alla vendita: Dott. Monica De Marchi. Liquidatore: Dott. Monica De Marchi - Email "monica@demarchistudio.it"; Cell. 335/8197084. Soggetto specializzato alla vendita: Aste Giudiziarie Inlinea Spa - Email "VENDITE@ASTEGIUDIZIARIE.IT". Rif. Tribunale di Cuneo - Liquidazione controllata(cci) n. 14/2025
Vendita all'asta Senza incanto, con gara telematica asincrona - LOTTO Unico: Unterkunft im ersten Stock mit Eingang, Wohnzimmer, Küche, Abstellraum, zwei Schlafzimmern, Vorbad und Bad sowie zwei Balkonen. Dachboden im vierten Stock, bestehend aus einem Teil eines einzigen Raums. Böden und Fliesen aus einfachem Keramikmaterial. Fensterrahmen aus Aluminium mit Isolierverglasung und Holzläden. Balkon mit Blick auf Via Nallino, bestehend aus Elementen aus traditionellem Naturstein, während der Balkon zum hinteren Innenhof aus Zementziegeln besteht. Die Heizanlage ist unabhängig und wird mit Methan betrieben, der Kessel mit Dichtigkeitssystem befindet sich in der Küche in einem speziellen Schrank. Die Wohnung ist an das öffentliche Wassernetz und Abwassersystem angeschlossen. Prezzo base € 80.262,00 (offerta minima € 80.262,00). Data inizio operazioni di vendita: 10/06/2026 ore 11:00. In caso di più offerte valide si procederà a gara che inizierà il 10/06/2026 ore 11:00 e terminerà il 17/06/2026 ore 11:00. Giudice: Dott. Paola Elefante. Professionista delegato alla vendita: Dott. Monica De Marchi. Liquidatore: Dott. Monica De Marchi - Email "monica@demarchistudio.it"; Cell. 335/8197084. Soggetto specializzato alla vendita: Aste Giudiziarie Inlinea Spa - Email "VENDITE@ASTEGIUDIZIARIE.IT". Rif. Tribunale di Cuneo - Liquidazione controllata(cci) n. 14/2025
Vendita all'asta Senza incanto, con gara telematica asincrona - LOTTO Unico: Accommodation on the first floor with entrance, living room, kitchen, storage room, two bedrooms, anteroom, bathroom, and two balconies. Attic on the fourth floor, consisting of a portion of a single room. Floors and coverings are plain ceramic tiles. Aluminum windows with double glazing and wooden shutters. Balcony overlooking Via Nallino made of traditional natural stone elements, while the one facing the rear courtyard is made of brick and cement. The heating system is autonomous with a gas supply, and the sealed chamber boiler is located in the kitchen within a specific compartment of the furniture. The house is connected to the public water supply and sewer system. Prezzo base € 80.262,00 (offerta minima € 80.262,00). Data inizio operazioni di vendita: 10/06/2026 ore 11:00. In caso di più offerte valide si procederà a gara che inizierà il 10/06/2026 ore 11:00 e terminerà il 17/06/2026 ore 11:00. Giudice: Dott. Paola Elefante. Professionista delegato alla vendita: Dott. Monica De Marchi. Liquidatore: Dott. Monica De Marchi - Email "monica@demarchistudio.it"; Cell. 335/8197084. Soggetto specializzato alla vendita: Aste Giudiziarie Inlinea Spa - Email "VENDITE@ASTEGIUDIZIARIE.IT". Rif. Tribunale di Cuneo - Liquidazione controllata(cci) n. 14/2025
Vendita all'asta Senza incanto, con gara telematica asincrona - LOTTO Unico: Logement au premier étage comprenant une entrée, un séjour, une cuisine, un débarras, deux chambres, un dressing, une salle de bains et deux balcons. Grenier privé au quatrième étage, composé d'une partie d'une seule pièce. Revêtements de sol et murs en carreaux de céramique de type simple. Menuiseries en aluminium avec double vitrage et volets en bois. Balcon donnant sur Via Nallino composé d'éléments en pierre naturelle de type traditionnel, tandis que celui donnant sur la cour arrière est en latéro-ciment. Le système de chauffage est autonome alimenté au gaz naturel, la chaudière à combustion étanche étant placée dans la cuisine à l'intérieur d'un compartiment spécifique du meuble. Le logement est raccordé aux réseaux d'eau potable et d'assainissement publics. Prezzo base € 80.262,00 (offerta minima € 80.262,00). Data inizio operazioni di vendita: 10/06/2026 ore 11:00. In caso di più offerte valide si procederà a gara che inizierà il 10/06/2026 ore 11:00 e terminerà il 17/06/2026 ore 11:00. Giudice: Dott. Paola Elefante. Professionista delegato alla vendita: Dott. Monica De Marchi. Liquidatore: Dott. Monica De Marchi - Email "monica@demarchistudio.it"; Cell. 335/8197084. Soggetto specializzato alla vendita: Aste Giudiziarie Inlinea Spa - Email "VENDITE@ASTEGIUDIZIARIE.IT". Rif. Tribunale di Cuneo - Liquidazione controllata(cci) n. 14/2025

Superficie 118,00 mq
Vani
Bagni
Piano 0

Tipologia di vendita Giudiziaria
Modalità di vendita Asincrona telematica
Termine presentazione offerte 09/06/2026 ore 12:00
Data e ora inizio gara 10/06/2026 ore 11:00
Codice ID astegiudiziarie.it 4342906
118,00
0
€ 80.262

Ti interessa questa vendita?

north_east

Clicca qui per essere indirizzato alla scheda sul sito di provenienza

Bene di astegiudiziarie.it