highlight_off
Riferimento annuncio 295869 info

Appartamento VOCABOLO PARADISO, 02040 Mompeo (RI)

5,50
180,00
0
€ 50.372
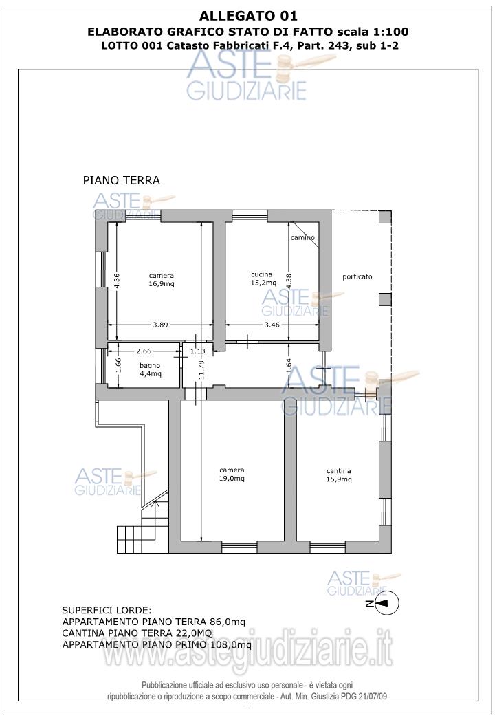
Vendita all'asta Senza incanto, con gara telematica asincrona - LOTTO UNICO: Piena Proprietà di abitazione di tipo civile sita in Mompeo (RI), Vocabolo Paradiso. L’immobile è costituito da un edificio cielo terra composto da n.2 unità immobiliari.L'appartamento al piano terra (sub 1) ha una superficie lorda di circa 86 mq, è costituito da ingresso/disimpegno; cucina; n.2 stanze; un bagno ed una zona di deposito. L'appartamento al piano primo( sub. 2) ha una superficie lorda di circa 108 mq, è costituto da ingresso/disimpegno; cucina-soggiorno; n.2 stanze; un bagno. Prezzo base € 50.371,88 (offerta minima € 37.778,91). Data inizio operazioni di vendita: 25/03/2026 ore 14:30. Professionista delegato alla vendita Avv. Anna Lisa Ciancarelli - Email "avv.ciancarelli@tiscali.it"; Tel. 3403504110. Custode Giudiziario Avv. Anna Lisa Ciancarelli - Email "avv.ciancarelli@tiscali.it"; Tel. 3403504110. Rif. Tribunale di Rieti - Esecuzione immobiliare post legge 80 n. 89/2023

Superficie 180,00 mq
Vani 5,50
Bagni
Piano 0

Tipologia di vendita Giudiziaria
Modalità di vendita Asincrona telematica
Termine presentazione offerte 01/01/1900 ore 00:00
Data e ora inizio gara 25/03/2026 ore 14:30
Codice ID astegiudiziarie.it 4320659
5,50
180,00
0
€ 50.372

Ti interessa questa vendita?

north_east

Clicca qui per essere indirizzato alla scheda sul sito di provenienza

Bene di astegiudiziarie.it