highlight_off
Riferimento annuncio 304184 info

Appartamento Via Vanella 139, 63, 97015 Modica RG, Italia, 97015 Modica (RG)

7,50
287,00
2
0
€ 84.000
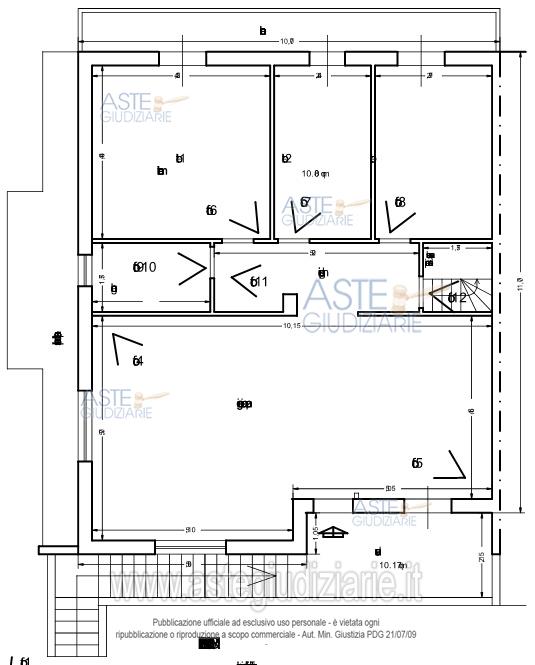
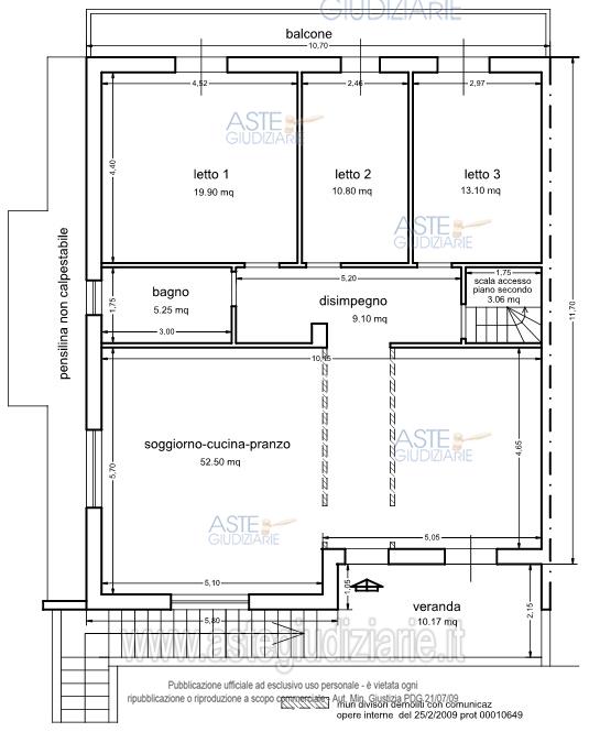
Vendita all'asta Senza incanto, con gara telematica sincrona mista - LOTTO UNICO: Appartamento per civile abitazione e lastrico solare. Prezzo base € 84.000,00 (offerta minima € 63.000,00). Data vendita 02/12/2025 ore 16:00. Giudice Dott. Carlo Di Cataldo. Professionista delegato alla vendita Dott. Patrizia Poidomani. Custode Giudiziario Dott. Patrizia Poidomani - Email "patriziapoidomani79@gmail.com". Rif. Tribunale di Ragusa - Espropriazione immobiliare (cartabia) n. 136/2024

Superficie 287,00 mq
Vani 7,50
Bagni 2
Piano 0

Tipologia di vendita Giudiziaria
Modalità di vendita Sincrona mista
Termine presentazione offerte 01/12/2025 ore 13:00
Data e ora inizio gara 02/12/2025 ore 16:00
Codice ID astegiudiziarie.it 4327177
7,50
287,00
2
0
€ 84.000

Ti interessa questa vendita?

north_east

Clicca qui per essere indirizzato alla scheda sul sito di provenienza

Bene di astegiudiziarie.it