Riferimento annuncio 323565
Appartamento Piazza dei Pescatori, 16047 Moconesi (GE)
5
2
3
€ 197.000
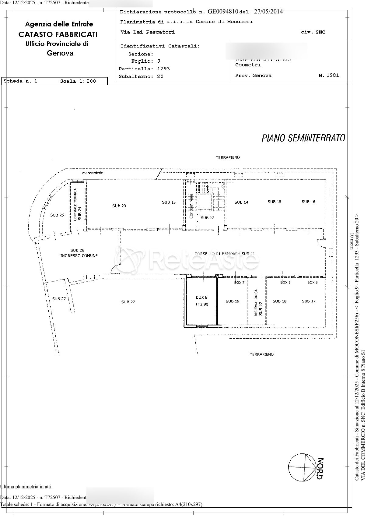
Appartamento di nuova costruzione, certificato in classe energetica A3, con garage di 17 mq situato al piano seminterrato.
L’immobile è ubicato al terzo piano di una moderna palazzina servita da ascensore, si sviluppa su una superficie complessiva di circa 100 mq, distribuita in soggiorno/pranzo. cucina, due camere e due bagni, con spazi ben organizzati e valorizzati dalla presenza di terrazzi, che garantiscono luminosità e una piacevole vivibilità degli ambienti.
L’elevata qualità costruttiva è confermata dalle murature esterne performanti e dai serramenti in alluminio a taglio termico con doppi vetri acustici e gas argon, che assicurano un eccellente isolamento termo-acustico. Il riscaldamento è centralizzato, con gestione tramite crono-termostati e contabilizzazione individuale dei consumi, a garanzia di efficienza e controllo ed un impianto solare terminco come supporto alle caldaie per la produzione di acqua calda sanitaria. Le finiture interne comprendono pavimenti in ceramica di pregio, mentre i bagni presentano rivestimenti moderni, sanitari sospesi e cabine doccia in cristallo. Completano l’estetica esterna le persiane alla genovese in alluminio e i davanzali in marmo bianco di carrara.
L’immobile si colloca in un contesto residenziale tranquillo, tipico dell’entroterra ligure, pur mantenendo un buon collegamento con i servizi locali e con le principali direttrici della Val Fontanabuona.
La posizione assume una rilevanza strategica particolarmente elevata in vista dell’imminente realizzazione del Tunnel della Val Fontanabuona, infrastruttura attesa da decenni e destinata a modificare in modo significativo l’assetto della mobilità dell’area.
Secondo gli ultimi aggiornamenti, l’avvio dei cantieri è previsto entro febbraio 2026: l’opera consentirà di collegare Moconesi a Rapallo in circa 10 minuti, creando una nuova e diretta prossimità con la costa e con il Golfo del Tigullio. Questo intervento è destinato a produrre un sensibile incremento dei valori immobiliari, anche alla luce della limitata disponibilità abitativa e delle quotazioni storicamente elevate dell’area costiera.
L’acquisto di questo appartamento, completo di garage, rappresenta pertanto un’opportunità concreta per anticipare e capitalizzare gli effetti di una trasformazione infrastrutturale di forte impatto sul territorio.
L’immobile è ubicato al terzo piano di una moderna palazzina servita da ascensore, si sviluppa su una superficie complessiva di circa 100 mq, distribuita in soggiorno/pranzo. cucina, due camere e due bagni, con spazi ben organizzati e valorizzati dalla presenza di terrazzi, che garantiscono luminosità e una piacevole vivibilità degli ambienti.
L’elevata qualità costruttiva è confermata dalle murature esterne performanti e dai serramenti in alluminio a taglio termico con doppi vetri acustici e gas argon, che assicurano un eccellente isolamento termo-acustico. Il riscaldamento è centralizzato, con gestione tramite crono-termostati e contabilizzazione individuale dei consumi, a garanzia di efficienza e controllo ed un impianto solare terminco come supporto alle caldaie per la produzione di acqua calda sanitaria. Le finiture interne comprendono pavimenti in ceramica di pregio, mentre i bagni presentano rivestimenti moderni, sanitari sospesi e cabine doccia in cristallo. Completano l’estetica esterna le persiane alla genovese in alluminio e i davanzali in marmo bianco di carrara.
L’immobile si colloca in un contesto residenziale tranquillo, tipico dell’entroterra ligure, pur mantenendo un buon collegamento con i servizi locali e con le principali direttrici della Val Fontanabuona.
La posizione assume una rilevanza strategica particolarmente elevata in vista dell’imminente realizzazione del Tunnel della Val Fontanabuona, infrastruttura attesa da decenni e destinata a modificare in modo significativo l’assetto della mobilità dell’area.
Secondo gli ultimi aggiornamenti, l’avvio dei cantieri è previsto entro febbraio 2026: l’opera consentirà di collegare Moconesi a Rapallo in circa 10 minuti, creando una nuova e diretta prossimità con la costa e con il Golfo del Tigullio. Questo intervento è destinato a produrre un sensibile incremento dei valori immobiliari, anche alla luce della limitata disponibilità abitativa e delle quotazioni storicamente elevate dell’area costiera.
L’acquisto di questo appartamento, completo di garage, rappresenta pertanto un’opportunità concreta per anticipare e capitalizzare gli effetti di una trasformazione infrastrutturale di forte impatto sul territorio.
Newly built apartment, certified in energy class A3, with a 17 sqm garage located on the basement level. The property is located on the third floor of a modern building served by an elevator, covering a total area of about 100 sqm, distributed in 6.5 rooms, with well-organized spaces enhanced by the presence of terraces which ensure brightness and a pleasant livability of the spaces. The high construction quality is confirmed by high-performing external walls and aluminum windows with thermal break and double glazing with acoustic and argon gas, ensuring excellent thermal and acoustic insulation. The heating is centralized and powered by solar panels, managed through timer thermostats and individual consumption metering, ensuring efficiency and control. The interior finishes include high-quality ceramic floors, while the bathrooms feature modern coverings, suspended sanitary ware, and glass shower cubicles. The external aesthetics are completed by aluminum Genoese blinds and White Carrara marble windowsills. The property is located in a quiet residential area, typical of the Ligurian hinterland, while maintaining good connections to local services and the main routes of the Val Fontanabuona. The location holds significant strategic relevance in light of the imminent construction of the Val Fontanabuona Tunnel, an infrastructure awaited for decades and set to significantly change the area's mobility structure. According to the latest updates, the start of construction is expected by February 2026: the project will connect Moconesi to Rapallo in about 10 minutes, creating a new and direct proximity to the coast and the Gulf of Tigullio. This intervention is expected to lead to a substantial increase in property values, considering the limited housing availability and historically high property prices in the coastal area. The purchase of this apartment, complete with a garage, represents a concrete opportunity to anticipate and capitalize on the effects of a transformation due to significant infrastructure changes in the region.
Vente en attente de l’émission d’un avis nouveau. Appartement neuf, certifié de classe énergétique A3, avec un garage de 17 m² situé au sous-sol. Le bien est situé au troisième étage d'un immeuble moderne desservi par un ascenseur, et s'étend sur une superficie totale d'environ 100 m², répartis en 6,5 pièces, avec des espaces bien organisés et valorisés par la présence de terrasses, assurant luminosité et agréabilité des espaces de vie. La haute qualité de construction est confirmée par des murs extérieurs performants et des fenêtres en aluminium à coupure thermique avec double vitrage acoustique et gaz argon, assurant une excellente isolation thermique et acoustique. Le chauffage est centralisé et alimenté par des panneaux solaires, géré via des thermostats programmables et une comptabilisation individuelle des consommations, garantissant efficacité et contrôle. Les finitions intérieures comprennent des carreaux de céramique de qualité, tandis que les salles de bains présentent des revêtements modernes, des sanitaires suspendus et des cabines de douche en verre. Complétant l'esthétique extérieure, on trouve des persiennes génoises en aluminium et des rebords de fenêtre en marbre blanc de Carrare. Le bien est situé dans un quartier résidentiel calme, typique de l'arrière-pays ligure, tout en restant bien connecté aux services locaux et aux principales voies de la Vallée de la Fontanabuona. Sa position revêt une importance stratégique particulièrement élevée en raison de la prochaine réalisation du Tunnel della Val Fontanabuona, une infrastructure attendue depuis des décennies et destinée à modifier de manière significative la mobilité de la région. Selon les dernières mises à jour, le démarrage des travaux est prévu pour février 2026 : l'ouvrage permettra de relier Moconesi à Rapallo en environ 10 minutes, créant une nouvelle proximité directe avec la côte et le golfe de Tigullio. Cette intervention devrait entraîner une augmentation sensible de la valeur des biens immobiliers, compte tenu de la disponibilité limitée de logements et des prix historiquement élevés de la région côtière. L'achat de cet appartement, avec garage, représente donc une opportunité concrète pour anticiper et capitaliser sur les effets d'une transformation infrastructurelle d'un impact important sur le territoire.
Vente en attente de l’émission d’un avis nouveau. Neubauwohnung, zertifiziert in Energieklasse A3, mit einer 17 qm großen Garage im Untergeschoss. Die Immobilie befindet sich im dritten Stock eines modernen Gebäudes mit Aufzug und erstreckt sich über eine Gesamtfläche von ca. 100 qm, aufgeteilt in 6,5 Zimmer, mit gut organisierten Räumen und Terrassen, die Helligkeit und angenehme Bewohnbarkeit der Räume garantieren. Die hohe Bauqualität wird durch leistungsstarke Außenwände und thermisch geschnittene Aluminiumfenster mit Doppelverglasung und Argongas bestätigt, die eine exzellente Wärme- und Schalldämmung gewährleisten. Die Heizung ist zentral und wird von Solarpaneelen betrieben, mit Steuerung über Chronothermostaten und individueller Verbrauchsabrechnung für Effizienz und Kontrolle. Die Innenausstattung umfasst hochwertige Keramikböden, während die Badezimmer moderne Verkleidungen, schwebende Sanitäranlagen und Duschkabinen aus Glas haben. Die äußere Ästhetik wird durch Aluminium-Lüftungsläden im genuesischen Stil und Fensterbänke aus weißem Carrara-Marmor vervollständigt. Die Immobilie befindet sich in einer ruhigen Wohngegend, typisch für das ligurische Hinterland, und ist gut an örtliche Dienstleistungen und Hauptverkehrsstraßen des Val Fontanabuona verbunden. Die Lage nimmt eine besonders hohe strategische Bedeutung an, angesichts der bevorstehenden Realisierung des Tunnels der Val Fontanabuona, einer seit Jahrzehnten erwarteten Infrastruktur, die voraussichtlich die Mobilität der Region erheblich verändern wird. Laut den neuesten Informationen soll der Baubeginn bis Februar 2026 erfolgen: Das Werk wird es ermöglichen, Moconesi mit Rapallo in etwa 10 Minuten zu verbinden und eine neue direkte Nähe zur Küste und zum Golf von Tigullio zu schaffen. Diese Maßnahme wird voraussichtlich zu einem deutlichen Anstieg der Immobilienwerte führen, auch angesichts der begrenzten Wohnverfügbarkeit und historisch hohen Preisen in der Küstenregion. Der Kauf dieser Wohnung, inklusive Garage, bietet daher eine konkrete Möglichkeit, um die Auswirkungen einer starken infrastrukturellen Veränderung auf dem Gebiet vorwegzunehmen und zu nutzen.
新建公寓,能源等级为A3,带有一个17平方米的地下车库。 该物业位于现代化大楼的第三层,配备电梯,总面积约100平方米,分布在6.5个房间内,空间布局合理,并通过阳台的设计增添室内亮度和宜居性。 高质量的建筑质量体现在表现出色的外墙和带有双层隔音氩气双层玻璃的热断桥铝窗上,保证卓越的隔热隔音效果。供暖中央集中供应,并由太阳能板提供,通过计时器控制和个人能源消耗计量来确保高效管理和控制。室内装修包括高品质陶瓷地板,浴室采用现代装饰,悬挂式卫生设备和玻璃淋浴间。外部美学由铝制百叶窗和白色卡拉拉大理石窗台完善。 该物业位于意大利里绍内特特典型的宁静住宅区,同时与当地服务设施和回旋镇的主要 Via Fontanabuona 公路保持着良好的联系。 地理位置具有特别重要的战略意义,考虑到 Val Fontanabuona 隧道的即将建成,该基础设施已受待了数十年,将大幅改变该地区的交通格局。 按照最新更新,工程开工预计在2026年2月之前:该工程将使莫科内西(Moconesi)与拉帕洛(Rapallo)之间的距离缩短至约10分钟,创造了一个新的直通海岸和迪古利奥湾之间关系密切的联系。这一举措将带来对房地产价值的显著增长,考虑到沿海地区住房供应有限且历史行情高昂。 购买这套带有车库的公寓因此成为了一种具体的机会,可以提前并资本化对土地产生重大影响的基础设施变革效应。
Объявление аукциона по данной продаже будет вскоре опубликовано. Новостройка, сертифицированная по классу энергетической эффективности A3, с гаражом 17 кв. м находится на полуподвальном уровне. Недвижимость расположена на третьем этаже современного здания со стандартным обслуживанием лифтом, занимает общую площадь около 100 кв. м, с 6,5 комнат, пространства организованы и оценены за счёт наличия террас, обеспечивающих свет и комфортное проживание в помещениях. Высокое строительное качество подтверждается энергоэффективными наружными стенами и алюминиевыми рамами с теплозащитными двойными стеклами и гелием, обеспечивающими отличное тепло- и звукоизоляцию. Отопление централизованное, оснащено солнечными панелями, управляется хроно-термостатами и обеспечивает индивидуальный учёт потребления, гарантируя эффективность и контроль. Внутренняя отделка включает качественную керамическую плитку на полу, современные облицовки в ванной, подвесной сантехники и душевые кабины из стекла. Внешний вид дополняют алюминиевые ставни и белый каррарский мрамор на подоконниках. Недвижимость находится в тихом жилом районе, характерном для внутренних районов Лигурии, с хорошим доступом к местным услугам и основным магистралям долины Фонтанабуона. Расположение имеет стратегическое значение в свете скорой реализации Тоннеля долины Фонтанабуона, инфраструктуры, ожидаемой уже десятилетиями и предназначенной для значительного изменения мобильности региона. Согласно последним обновлениям, строительство планируется начать к февралю 2026 года, что позволит соединить Моконези с Рапалло примерно за 10 минут, создавая новое прямое сообщение с побережьем и Тигульским заливом. Это мероприятие направлено на значительное повышение цен на недвижимость, учитывая ограниченное жилищное предложение и исторически высокие цены в прибрежной зоне. Покупка этой квартиры с гаражом представляет собой реальную возможность заранее использовать и капитализировать эффекты значительной инфраструктурной трансформации в регионе.
| Superficie | mq |
|---|---|
| Vani | 5 |
| Bagni | 2 |
| Piano | 3 |
| Tipologia di vendita | Privata |
|---|---|
| Modalità di vendita | Raccolta offerte |