highlight_off
Riferimento annuncio 325337 info

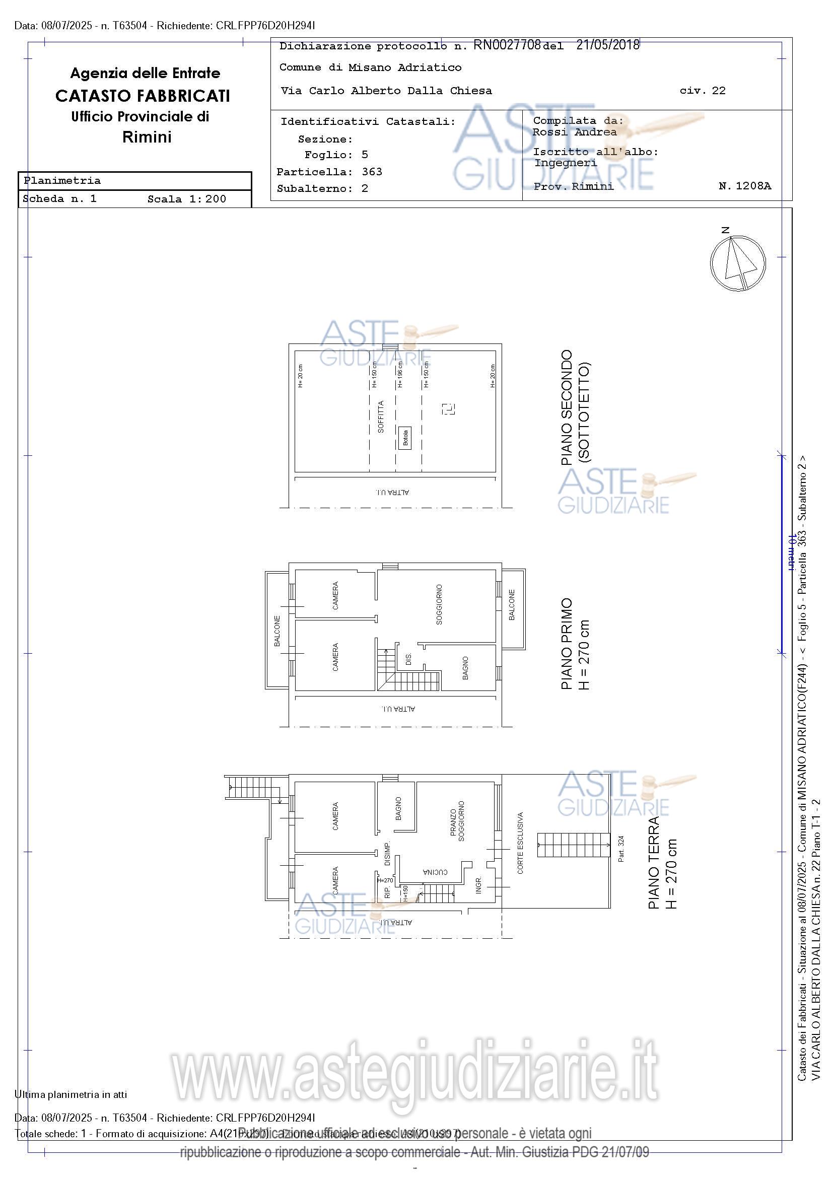
Appartamento Via Carlo Alberto dalla Chiesa, 22, 47843 Scacciano RN, Italia, 47843 Misano Adriatico (RN)

9,00
148,00
0
€ 352.350
Vendita all'asta Senza incanto, con gara telematica asincrona - LOTTO UNICO: Piena proprietà per la quota di 1/1 di civile abitazione. Porzione cielo-terra di testa in più ampia schiera. Appartamento ai piani T-1-2 e magazzino al piano S1 posti in Misano Adriatico (RN), Località Scacciano, Via Carlo Alberto dalla Chiesa 22-22/A. Prezzo base € 352.350,00 (offerta minima € 264.262,50). Data inizio operazioni di vendita: 31/03/2026 ore 11:30. Professionista delegato alla vendita Avv. Gianluca Laganella - Email "AVV.LAGANELLA@GMAIL.COM"; Cell. 3389625986; Tel. 0541790913. Custode Giudiziario Avv. Gianluca Laganella - Email "AVV.LAGANELLA@GMAIL.COM"; Cell. 3389625986; Tel. 0541790913. Rif. Tribunale di Rimini - Espropriazione immobiliare (cartabia) n. 127/2024

Superficie 148,00 mq
Vani 9,00
Bagni
Piano 0

Tipologia di vendita Giudiziaria
Modalità di vendita Asincrona telematica
Termine presentazione offerte 30/03/2026 ore 13:00
Data e ora inizio gara 31/03/2026 ore 11:30
Codice ID astegiudiziarie.it 4343642
9,00
148,00
0
€ 352.350

Ti interessa questa vendita?

north_east

Clicca qui per essere indirizzato alla scheda sul sito di provenienza

Bene di astegiudiziarie.it