highlight_off
Riferimento annuncio 293253 info

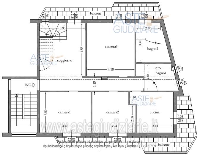
Appartamento VIA CALVARIO N.1, 95044 Mineo (CT)

6,00
119,00
2
2
€ 52.500
Vendita all'asta Senza incanto, con gara telematica sincrona mista - LOTTO UNICO: APPARTAMENTO PER CIVILE ABITAZIONE , N° 6 VANI, SUPERFICIE CATASTALE MQ 119. Prezzo base € 52.500,00 (offerta minima € 39.375,00). Data vendita 21/11/2025 ore 18:00. Giudice Dott. A.M.Patrizia Cavallaro. Professionista delegato alla vendita Avv. Nicolo' Larnica - Email "nlarnica@virgilio.it"; Cell. 3338572647. Custode Giudiziario Avv. Nicolo' Larnica - Email "nlarnica@virgilio.it"; Cell. 3338572647. Rif. Tribunale di Caltagirone - Esecuzione immobiliare post legge 80 n. 35/2023

Superficie 119,00 mq
Vani 6,00
Bagni 2
Piano 2

Tipologia di vendita Giudiziaria
Modalità di vendita Sincrona mista
Termine presentazione offerte 20/11/2025 ore 12:00
Data e ora inizio gara 21/11/2025 ore 18:00
Codice ID astegiudiziarie.it 4318625
6,00
119,00
2
2
€ 52.500

Ti interessa questa vendita?

north_east

Clicca qui per essere indirizzato alla scheda sul sito di provenienza

Bene di astegiudiziarie.it