highlight_off
Riferimento annuncio 129108 info

Appartamento contrada FUSCO, 95044 Mineo (CT)

7,00
133,00
2
0
€ 38.918
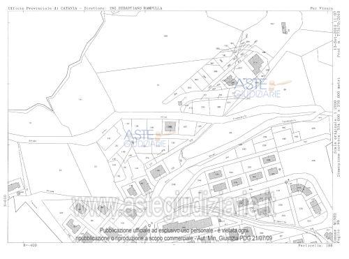
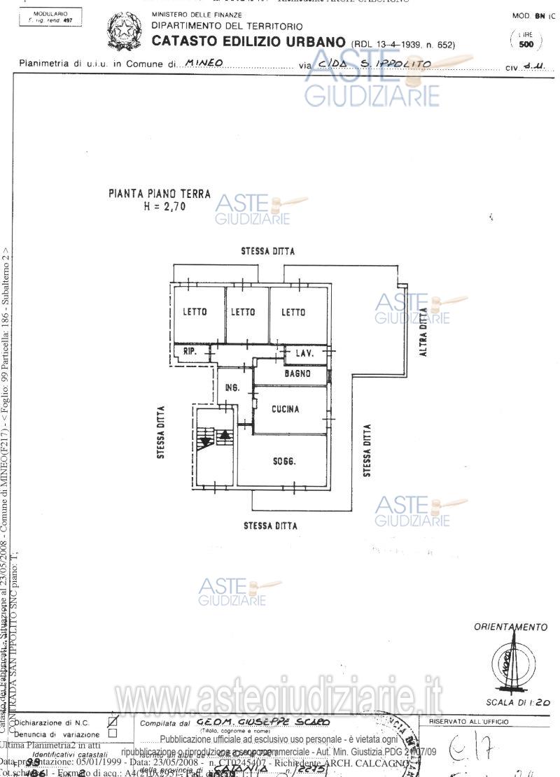
Vendita all'asta Senza incanto, con gara telematica sincrona mista - LOTTO 1: Appartamento sito nel Comune di Mineo, contrada S. Ippolito, oggi rinominata c.da Fusco, individuato al catasto al foglio 99, parti. 186, sub 2, categoria A/2, classe 4, piano rialzato, consistenza 7 vani, attualmente concesso in locazione, con prezzo base d’asta di € 38.917,96 (trentottomilanovecentodiciassette/96). Prezzo base € 38.917,96 (offerta minima € 29.188,47). Data vendita 06/11/2025 ore 17:30. Professionista delegato alla vendita Avv. Francesca Bizzini - Email "francesca.bizzini@tiscali.it"; Tel. 3397397431. Custode Giudiziario Avv. Francesca Bizzini - Email "francesca.bizzini@tiscali.it"; Tel. 3397397431. Rif. Tribunale di Caltagirone - Esecuzione immobiliare post legge 80 n. 38/2005

Superficie 133,00 mq
Vani 7,00
Bagni 2
Piano 0

Tipologia di vendita Giudiziaria
Modalità di vendita Sincrona mista
Termine presentazione offerte 05/11/2025 ore 12:00
Data e ora inizio gara 06/11/2025 ore 17:30
Codice ID astegiudiziarie.it 382052
7,00
133,00
2
0
€ 38.918

Ti interessa questa vendita?

north_east

Clicca qui per essere indirizzato alla scheda sul sito di provenienza

Bene di astegiudiziarie.it