Riferimento annuncio 296535
Appartamento Via Tertulliano, 20100 Milano (MI)
4
1
pr
€ 160.100
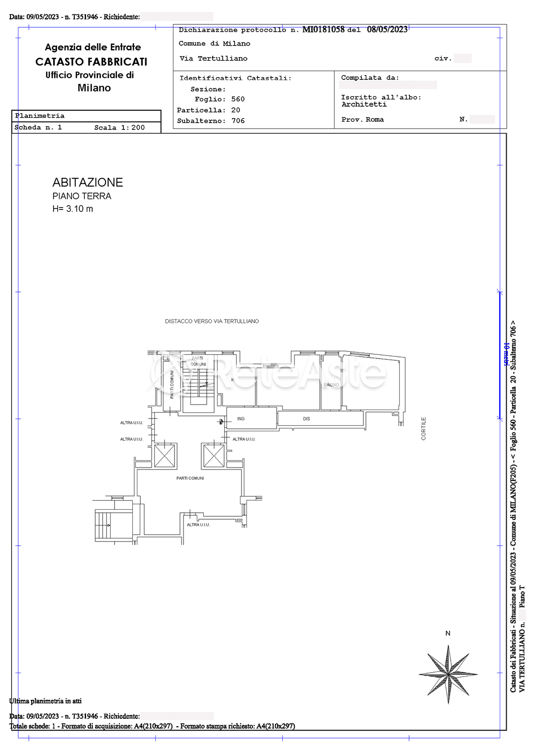
Appartamento al piano rialzato posto in un contesto residenziale molto ricercato di Milano, precisamente in Via Tertulliano, nel quartiere Porta Romana. L'immobile è composto da ingresso, cucina abitabile, soggiorno, disimpegno, ripostiglio, una camera da letto e un bagno, per un totale di 80 mq suddivisi in 4 vani.
L'unità è dotata di riscaldamento centralizzato, infissi esterni in vetro/legno, porta blindata, impianto TV centralizzato e servizio di portineria attivo per l'intera giornata.
Completa la proprietà una cantina di circa 5 mq al piano seminterrato primo.
L'appartamento si trova a pochi minuti dal centro di Milano, facilmente raggiungibile grazie alla vicinanza alla fermata della metropolitana M3 Porta Romana. Questa zona è ben collegata con le principali attrazioni della città, tra cui il Duomo, il Teatro alla Scala, la Galleria Vittorio Emanuele II, e le vie dello shopping. Inoltre, l'immobile è a breve distanza dalla fermata del tram 16, che consente di esplorare altre zone della città, e dai principali servizi come supermercati, ristoranti, scuole e parchi, come il Parco Emilio Alessandrini. La zona è ideale per famiglie, professionisti e chiunque cerchi una soluzione residenziale comoda e ben servita.
L'unità è dotata di riscaldamento centralizzato, infissi esterni in vetro/legno, porta blindata, impianto TV centralizzato e servizio di portineria attivo per l'intera giornata.
Completa la proprietà una cantina di circa 5 mq al piano seminterrato primo.
L'appartamento si trova a pochi minuti dal centro di Milano, facilmente raggiungibile grazie alla vicinanza alla fermata della metropolitana M3 Porta Romana. Questa zona è ben collegata con le principali attrazioni della città, tra cui il Duomo, il Teatro alla Scala, la Galleria Vittorio Emanuele II, e le vie dello shopping. Inoltre, l'immobile è a breve distanza dalla fermata del tram 16, che consente di esplorare altre zone della città, e dai principali servizi come supermercati, ristoranti, scuole e parchi, come il Parco Emilio Alessandrini. La zona è ideale per famiglie, professionisti e chiunque cerchi una soluzione residenziale comoda e ben servita.
Le foto pubblicate hanno un mero scopo illustrativo, per visionare il bene contattare lo staff alla mail: staffvendite@astetraprivati.it
APE:
Indice prestazione energetica: 173,10 kWh/mq anno
Indice prestazione energetica rinnovabile: 0.07 kWh/mq anno
Codice identificativo: 1514605145921/2021
We offer for sale a ground floor APARTMENT composed of an entrance, a habitable kitchen, a living room, a hallway, a storage room, one bedroom, and a bathroom. The unit has centralized heating, external windows in glass/wood, and a reinforced door. Centralized TV system and full-day concierge service are available.
The property also includes a cellar of approximately 5 square meters on the first basement floor.
The published photos are for illustrative purposes only. To view the property, please contact the staff at the email: staffvendite@astetraprivati.it
Energy Performance Certification (APE):
Energy performance index: 173.10 kWh/sqm per year
Renewable energy performance index: 0.07 kWh/sqm per year
Identification code: 1514605145921/2021
The property also includes a cellar of approximately 5 square meters on the first basement floor.
The published photos are for illustrative purposes only. To view the property, please contact the staff at the email: staffvendite@astetraprivati.it
Energy Performance Certification (APE):
Energy performance index: 173.10 kWh/sqm per year
Renewable energy performance index: 0.07 kWh/sqm per year
Identification code: 1514605145921/2021
Vente en attente de l’émission d’un avis nouveau. Nous proposons à la vente un APPARTEMENT au rez-de-chaussée composé d'une entrée, d'une cuisine habitable, d'un salon, d'un dégagement, d'un cellier, d'une chambre et d'une salle de bains. L’unité dispose du chauffage centralisé, de fenêtres extérieures en verre / bois, d'une porte blindée. Système de télévision centralisé et service de conciergerie toute la journée.
La propriété comprend une cave d'environ 5 mètres carrés au premier sous-sol.
Les photos publiées sont à des fins purement illustratives. Pour visiter la propriété, veuillez contacter le personnel à l'adresse e-mail suivante : staffvendite@astetraprivati.it
DPE :
Indice di prestazione energetica: 173,10 kWh/mq anno
Indice di prestazione energetica rinnovabile: 0,07 kWh/mq anno
Code d'identification : 1514605145921/2021
La propriété comprend une cave d'environ 5 mètres carrés au premier sous-sol.
Les photos publiées sont à des fins purement illustratives. Pour visiter la propriété, veuillez contacter le personnel à l'adresse e-mail suivante : staffvendite@astetraprivati.it
DPE :
Indice di prestazione energetica: 173,10 kWh/mq anno
Indice di prestazione energetica rinnovabile: 0,07 kWh/mq anno
Code d'identification : 1514605145921/2021
Vente en attente de l’émission d’un avis nouveau. Wir bieten zum Verkauf eine Etagenwohnung im Erdgeschoss bestehend aus Eingangsbereich, geräumiger Küche, Wohnzimmer, Flur, Abstellraum, einem Schlafzimmer und einem Badezimmer an. Die Wohnung verfügt über eine Zentralheizung, Außenfenster aus Glas/Holz und eine Panzertür. Zentralisierte TV-Anlage und ganztägiger Portierdienst.
Zur Wohnung gehört ein Keller von etwa 5 qm im ersten Untergeschoss.
Die veröffentlichten Fotos dienen nur zur Veranschaulichung. Für einen Besichtigungstermin wenden Sie sich bitte an das Verkaufspersonal unter der E-Mail-Adresse: staffvendite@astetraprivati.it
Energieausweis:
Energieverbrauchskennwert: 173,10 kWh/qm pro Jahr
Energieverbrauchskennwert erneuerbar: 0,07 kWh/qm pro Jahr
Identifikationscode: 1514605145921/2021
Zur Wohnung gehört ein Keller von etwa 5 qm im ersten Untergeschoss.
Die veröffentlichten Fotos dienen nur zur Veranschaulichung. Für einen Besichtigungstermin wenden Sie sich bitte an das Verkaufspersonal unter der E-Mail-Adresse: staffvendite@astetraprivati.it
Energieausweis:
Energieverbrauchskennwert: 173,10 kWh/qm pro Jahr
Energieverbrauchskennwert erneuerbar: 0,07 kWh/qm pro Jahr
Identifikationscode: 1514605145921/2021
该公寓位于米兰备受追捧的住宅区,准确地说是在波尔塔·罗马纳区的泰尔图利亚诺街。该物业由入口、可供居住的厨房、客厅、走廊、储藏室、一间卧室和一间浴室组成,总面积80平方米,分为4个房间。 该单元配备集中供暖、外部玻璃/木窗、防盗门、集中电视系统以及全天候运行的门房服务。 该公寓还包括一个约5平方米的地下一楼地下室。 该公寓距离米兰市中心仅几分钟车程,因其靠近M3波尔塔·罗马纳地铁站而便于到达。该地区与城市的主要景点紧密相连,包括主教座堂、斯卡拉剧院、维托里奥·埃马努埃尔二世画廊以及购物街。此外,该物业距离16路有轨电车站仅有一小段距离,可以探索城市的其他地区,且靠近主要服务设施,如超市、餐馆、学校和公园,如艾米利奥·亚历山德里尼公园。该区域非常适合家庭、专业人士以及寻找便利和便捷的住宅解决方案的人。 发布的照片仅供参考,如需查看房产,请通过以下电子邮件与工作人员联系:staffvendite@astetraprivati.it 能源性能指数: 能源性能指数: 173.10 千瓦时/平方米 年 可再生能源性能指数: 0.07 千瓦时/平方米 年 识别码: 1514605145921/2021
Объявление аукциона по данной продаже будет вскоре опубликовано. Квартира на первом этаже в очень востребованном жилом районе Милана, именно на улице Тертуллиано, в районе Порта-Романа. Недвижимость состоит из прихожей, просторной кухни, гостиной, коридора, кладовки, спальни и ванной комнаты, общей площадью 80 кв. м, разделенных на 4 комнаты. Единица оборудована центральным отоплением, стеклопакетами из стекла/дерева, бронированной дверью, централизованной системой телевидения и круглосуточной службой консьержа. Также владение дополняет подвальная кладовка примерно 5 кв. м на первом подземном этаже. Квартира находится всего в нескольких минутах от центра Милана, легко доступная благодаря близости к станции метро M3 Порта-Романа. Этот район хорошо связан с главными достопримечательностями города, такими как Дуомо, Театр Ла Скала, Галерея Витторио Эмануэле II и торговые улицы. Кроме того, недвижимость находится в непосредственной близости от остановки трамвая 16, что позволяет исследовать другие районы города, а также от основных услуг, таких как супермаркеты, рестораны, школы и парки, включая Парк Эмилио Алессандрини. Этот район идеален для семей, специалистов и всех, кто ищет удобное и хорошо обслуживаемое жилье. Опубликованные фотографии представлены исключительно для иллюстративных целей. Для просмотра недвижимости свяжитесь с персоналом по адресу электронной почты: staffvendite@astetraprivati.it Сертификат энергетической эффективности: Индекс энергопотребления: 173,10 кВт*ч/кв. м в год Индекс возобновляемой энергии: 0,07 кВт*ч/кв. м в год Идентификационный код: 1514605145921/2021
Superficie | mq |
---|---|
Vani | 4 |
Bagni | 1 |
Piano | pr |
Tipologia di vendita | Privata |
---|---|
Modalità di vendita | Raccolta offerte |