highlight_off
Riferimento annuncio 304095 info

Appartamento Via Sabbione, 4, 10070 Mezzenile TO, Italia, 10070 Mezzenile (TO)

7,50
119,00
0
€ 42.400
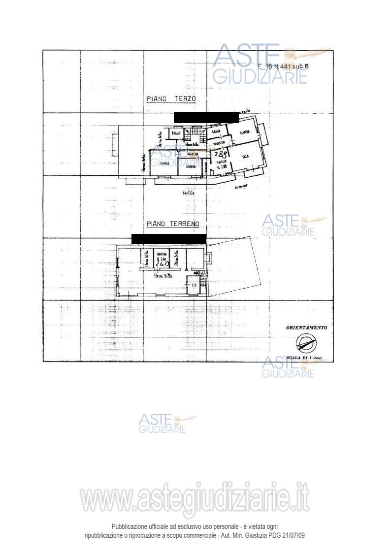
Vendita all'asta Senza incanto, con gara telematica asincrona - LOTTO 7: Piena ed intera proprietà di un appartamento al piano terzo, composto da ingresso, tinello con cucinino, sala, tre camere, bagno, tre balconi edulteriore servizio igienico non direttamente comunicante con l’U.I. in oggetto (collocato inadiacenza al vano scala ed accessibile dal pianerottolo); al P.T. cantina pertinenziale. Prezzo base € 42.400,00 (offerta minima € 31.800,00). Data inizio operazioni di vendita: 28/10/2025 ore 10:00. Giudice Augusto Salustri. Professionista delegato alla vendita Avv. Lorena Meritano. Custode Giudiziario Avv. Lorena Meritano - Email "studio.dcpm@libero.it"; Tel. 0114407808. Rif. Tribunale di Ivrea - Esecuzione immobiliare post legge 80 n. 29/2018

Superficie 119,00 mq
Vani 7,50
Bagni
Piano 0

Tipologia di vendita Giudiziaria
Modalità di vendita Asincrona telematica
Termine presentazione offerte 27/10/2025 ore 12:00
Data e ora inizio gara 28/10/2025 ore 10:00
Codice ID astegiudiziarie.it 4327116
7,50
119,00
0
€ 42.400

Ti interessa questa vendita?

north_east

Clicca qui per essere indirizzato alla scheda sul sito di provenienza

Bene di astegiudiziarie.it