highlight_off
Riferimento annuncio 321142 info

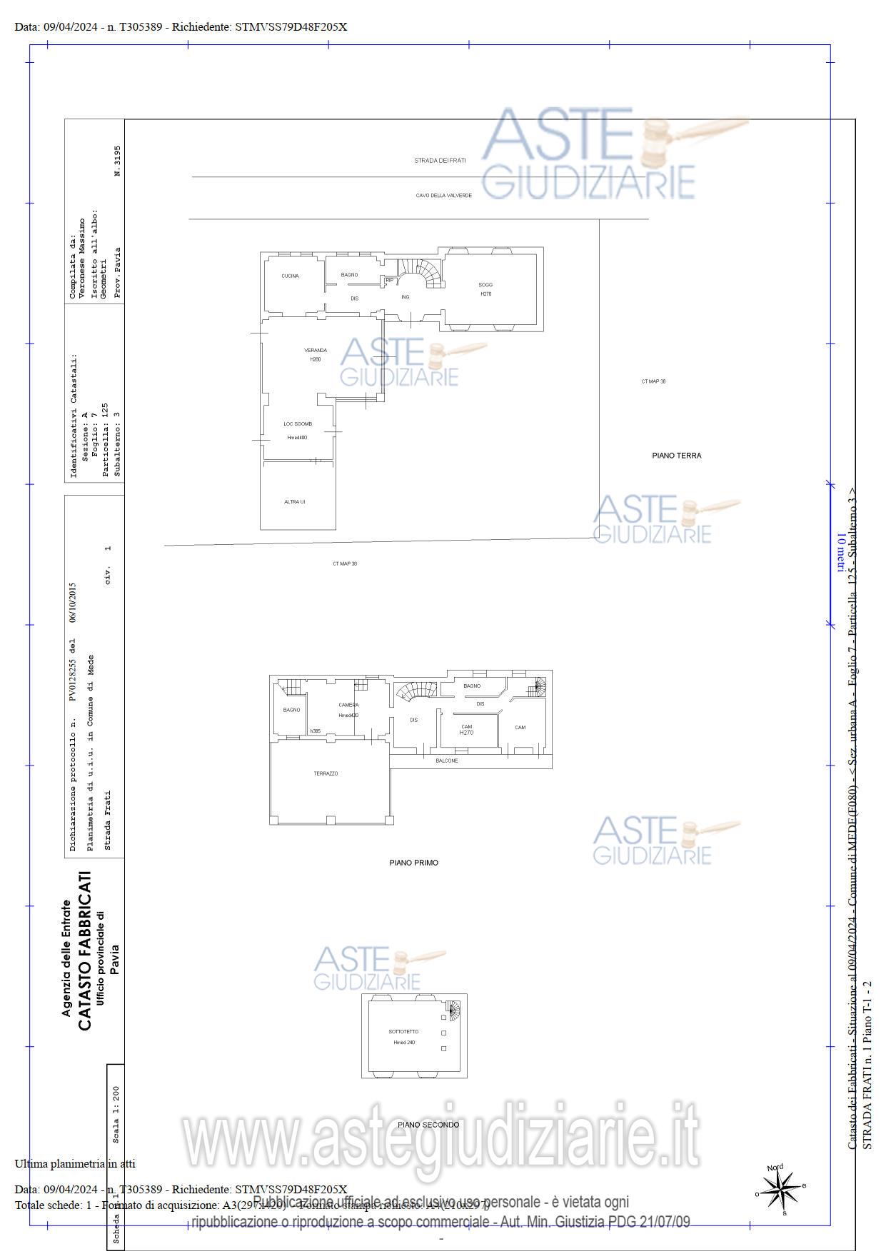
Appartamento strada Frati, 1, 27035 Mede (PV)

8,00
240,00
1
0
€ 150.450
Vendita all'asta Senza incanto, con gara telematica asincrona - LOTTO 1: Unità abitativa, composta da: piano terra, piano primo, secondo piano, autorimessa, centrale termica, piscina esterna e terreno seminativo. Il tutto come meglio descritto nell'avviso di vendita. Prezzo base € 150.450,00 (offerta minima € 112.838,00). Data inizio operazioni di vendita: 29/04/2026 ore 09:00. Giudice Antonio Codega. Professionista delegato alla vendita Dott. Giacomo Dellaglio - Email "studiodellaglio1@gmail.com"; Cell. 347/9337709. Custode Giudiziario Istituto Vendite Giudiziarie Srl Ifir Piemonte - Email "immobiliarivigevano@ifir.it"; Tel. 0381/691137. Rif. Tribunale di Pavia - Contenzioso civile n. 3400/2024

Superficie 240,00 mq
Vani 8,00
Bagni 1
Piano 0

Tipologia di vendita Giudiziaria
Modalità di vendita Asincrona telematica
Termine presentazione offerte 01/01/1900 ore 00:00
Data e ora inizio gara 29/04/2026 ore 09:00
Codice ID astegiudiziarie.it 4340931
8,00
240,00
1
0
€ 150.450

Ti interessa questa vendita?

north_east

Clicca qui per essere indirizzato alla scheda sul sito di provenienza

Bene di astegiudiziarie.it