highlight_off
Riferimento annuncio 132335 info

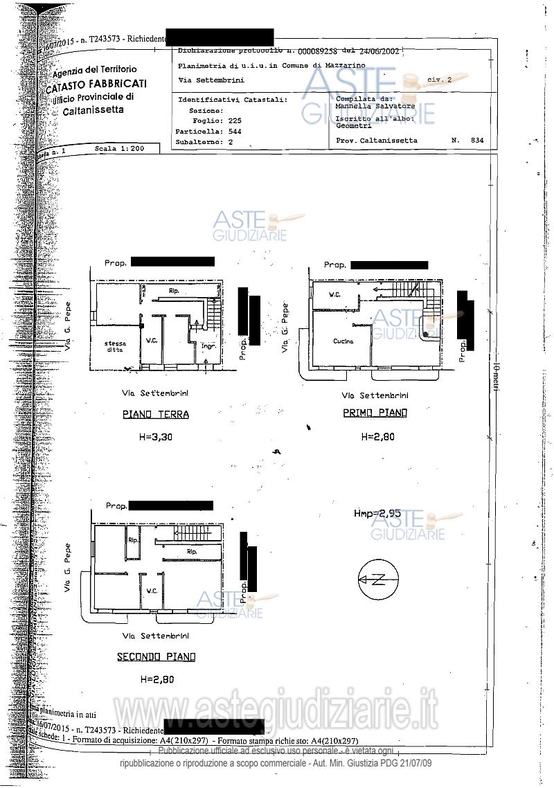
Appartamento Via Settembrini, n. 2/Via Pepe, n. 21, 93013 Mazzarino (CL)

236,00
0
€ 33.564
Vendita all'asta Senza incanto, con gara telematica sincrona mista - LOTTO 1: Appartamento costituito da piano terra, primo e secondo piano. Prezzo base € 33.564,37 (offerta minima € 25.173,28). Data vendita 23/06/2026 ore 15:30. Professionista delegato alla vendita: Avv. Emanuele Maganuco - Email "francesco.mascali@studiolegalemaganuco.it"; Tel. 0933/925892; Cell. 347/8190922. Custode Giudiziario: Avv. Emanuele Maganuco - Email "francesco.mascali@studiolegalemaganuco.it"; Tel. 0933/925892; Cell. 347/8190922. Rif. Tribunale di Gela - Esecuzione immobiliare post legge 80 n. 47/2014

Superficie 236,00 mq
Vani
Bagni
Piano 0

Tipologia di vendita Giudiziaria
Modalità di vendita Sincrona mista
Termine presentazione offerte 01/01/1900 ore 00:00
Data e ora inizio gara 23/06/2026 ore 15:30
Codice ID astegiudiziarie.it 347684
236,00
0
€ 33.564

Ti interessa questa vendita?

north_east

Clicca qui per essere indirizzato alla scheda sul sito di provenienza

Bene di astegiudiziarie.it